Casa Hemeroscopium
Introducción
Antón García Abril y Ensamble Studio han diseñado este espacio doméstico como un complejo sistema de equilibrio inestable en el que la imaginación, a través de la complejidad de la estructura que envuelve el recinto, se escapa con las visuales de un horizonte distanciado.
Recuerda obras del brutalismo, pero no hay brutalidad en esta obra, sólo perfeccionamiento y juego, en resumen un lugar para vivir, amplio, luminoso y sofisticado. Según palabras del arquitecto es una casa cien por cien emocional, donde este sentimiento se complementó y fusionó con la parte racional de la ingeniería, dando como resultado un espacio para ser habitado.
Situación
Construida en Las Rozas, uno de los más grandes municipios de la Comunidad de Madrid en el valle del Guadarrama, España.
Se encuentra a una distancia de 18 km de Madrid capital, encajonada entre la carretera de La Coruña A-6, que atraviesa la ciudad partiéndola en dos zonas de tamaño desigual, y la carretera del Escorial M-505 que tiene su kilómetro 0 en este municipio. Tiene 3 estaciones de ferrocarril: Las Rozas, Las Matas y Pinar.
Concepto
“Todo nuestro esfuerzo para desarrollar la técnica en búsqueda de un espacio concreto. Y así surge un lenguaje sorprendente, donde la forma desaparece dejando paso al espacio desnudo. La Casa Hemeroscopium materializa el culmen de su equilibrio con lo que en Ensamble Studio llamamos con ironía el punto G, veinte toneladas de granito, expresión de la fuerza de la gravedad y contrapeso físico de toda su estructura” (Ensamble Studio)
Inspirados en un mítico paraíso griego para los sentidos, con la Casa Hemeroscopium, el arquitecto ha creado un paraíso hecho en la tierra.
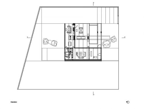
Espacios
Hablar de los espacios de esta construcción es poner la imaginación al servicio del espacio y la luz, los ventanales rodean todos los ambientes e invitan a participar del suave paisaje de la sierra o a conseguir la intimidad mediante cortinas de lamas regulables.
El patio de la planta baja ofrece un espacio protegido pero abierto al viento. Allí se ha ubicado una piscina más convencional que la de la planta superior.
En esta planta se desarrollan los espacios dedicados a la cocina y grandes salones.
En la planta superior se ubica la zona de los dormitorios, desde uno de los cuales se tiene acceso a la piscina cuyo final parece perderse entre la copa de los árboles.
La larga piscina en viga hacia el aire del primer piso es una de las imágenes más fotografiadas de esta casa y vista desde abajo parece que vaya a precipitarse al jardín, como si se tratase de un vierteaguas gigante, produciendo cierto vértigo para el observador.
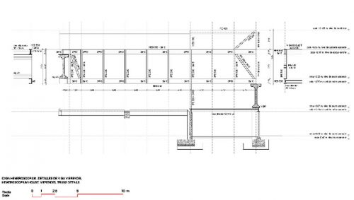
Estructura
Hemeroscopium se expresa materialmente con un orden de apilamientos estructurales de forma helicoidal cada vez más ligero en sentido ascendente, constituyendo a la casa en un área ligera, transparente, y haciendo que el espacio que ha llenado su interior gire con la vida, es una estructura de hormigón en voladizo.
El orden de apilamientos estructurales genera un helicoide que parte de un apoyo estable, la viga madre, para ir desarrollándose en sentido ascendente con estructuras cada vez más ligeras hasta cerrar la secuencia con un punto que culmina el sistema de equilibrio. Además, las enormes piezas de hormigón se apoyan unas sobre otras en un equilibrio que mantiene a raya un gran bloque de granito de 20 toneladas a modo de contrapeso.
Son siete elementos cuyos encuentros responden a su naturaleza constructiva, a sus solicitaciones, y sus esfuerzos expresan su condición estructural.
Materiales
Es una casa de hormigón, cristal y agua.
La aparente simplicidad de sus encuentros gracias al armado y al pretensado y postensado de los aceros que cosen el alma de las vigas en sus diferentes formas exige una compleja ingeniería.
El montaje de la edificación, hecha en su mayor parte de acero pretensado y componentes prefabricados, simplificó en 7 días el arduo trabajo de un año de ingeniería y una impecable coordinación del proyecto, utilizándose para su montaje plumas de 60 metros y gran tonelaje.
Encima de su estructura se ha colocado un bloque de granito de 20 toneladas que sirve como contrapeso, llamado por sus creadores «punto G».





































