Immeuble Clartè
Introducción
Encargo del industrial genovés Edmond Wanner, fue realizado por Le Corbusier y Pierre Jeanneret entre los años 1930 y 1932 , en Ginebra en Suiza.
Wanner era un industrial que dirigía una empresa ferroviaria y que expuso sus productos en la Exposición Nacional de Artes decorativas en la ciudad de Paris en 1925, donde probablemente se encontraría con Le Corbusier en el sitio del Pabellón L’Esprit Nouveau.
Hacia 1927 Wanner habría encargado algunos esquemas para diversos proyectos con el concepto de “immeubles –villas” donde imperaban ideas como el jardín suspendido de un apartamento. Algunos otros se habrían estudiado notando claramente la introducción de la “rue interieur” pero en este caso la <>. Así terminaría por financiar la idea para el conjunto de departamentos los cuales se construirían en una parcela familiar que donaría para el encargo.
Situación
Situado en los números 2 y 4, Calle Saint-Laurent, en el barrio de Eaux-Vives, Ginebra,Suiza. En 2004 la UNESCO lo propone para incluirlo en la Lista del Patrimonio Mundial con una serie de otros edificios de Le Corbusier . Las fachadas y zonas comunes han sido renovadas entre 2007 y 2009. Actualmente se encuentra restaurado.
Concepto
Basado en cuatro de los cinco puntos de Le Corbusier, planta libre, la estructura ad hoc, fachada libre, pared de cristal y terraza cubierta. El edificio se monta a base de una estructura de acero la cual le permite tener la planta libre, fachada de vidrio, terrazas, y múltiples opciones para el desarrollo de los departamentos en su interior.
También logra renovar la cultura del habitar de la clase media con un “inmueble villa”, el concepto que maneja Le Corbusier de “rue interieure”, lo logra en este edificio mediante las <> .
Le Corbusier hace un estudio de distintos esquemas de escalera, pero logra realizarlo mediante dos cubos de escalera verticales que distribuyen hacia los apartamentos que cuentan con acabados en vidrio como escalones y descansos, así se volverían cajas traslucidas verticales.
Esta obra representa una posición clara dentro de la obra del arquitecto, ya que se presenta como un edificio donde se realiza un trabajo de investigación en la manera de construir el edificio ya que lo “monta en seco”.
La estructura a base de pilares metálicos es montada y soldada, dejando las plantas libres y creando la libertad para conformar los interiores con muros que no cargan. En el interior el concepto que maneja Le Corbusier es el de una villa organizada en dos niveles alrededor de un jardín.
Espacios
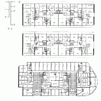
La parcela donde se desarrolla el edificio cuenta con 15 metros de ancho por 50 metros de largo.
Las villas cuentan con distintos tamaños; existen 8 plantas con 48 departamentos de distintos tamaños y formas incluyendo 16 dúplex.
*Planta baja
En esta planta existe un basamento que contiene cinco locales comerciales así como los accesos principales al edificio.
Estos accesos nos conducen hacia los dos halls o vestíbulos que nos distribuyen el espacio y nos trasladan tanto a los dos cubos de escaleras traslucidos, como hacia las circulaciones de los locales comerciales que se desplantan en toda la planta.
Aquí también encontramos los servicios comunes como bodegas, maquinaria de calefacción para guardado de bicicletas, parking y basura.
*Planta 1er nivel
A partir de aquí comienza el desplante de departamentos sencillos y dúplex con la característica que se utiliza el basamento de la parte de los locales comerciales como terraza en sus dos lados principal de acceso y posterior.
*Planta tipo
Aquí tenemos el esquema de espejo donde de un lado existen cuatro departamentos: dos sencillos en el centro y dos dúplex. Se accede mediante los cubos de escalera centrales en este nivel se puede ingresar a los departamentos dúplex. Esta planta cuenta con terraza/balcón así como persianas o brise solei que ayuda a controlar el sol.
*Planta tipo (dúplex)
En esta planta se puede acceder a los dos apartamentos sencillos, mientras que los dúplex, se accede en la planta anterior. En esta planta también podemos ver las terrazas balcón contando también con persianas dedicadas a obstruir el sol.
*Planta octava
En esta una de las crujías de acero desaparece para dar paso a un volumen que se repliega hacia la parte de adentro. En este caso los apartamentos se reducen en su tamaño ocupando parte de la azotea de la séptima planta como terrazas o balcones en estos.
*Planta Azotea
La cubierta de azotea es un solárium donde todos los vecinos gozan de unas vistas inmejorables de la ciudad. Aquí se encuentran las salientes de las chimeneas e inclusive se encuentra una pieza llamada el vagón donde se ubica otra vivienda a partir de medio nivel.
Estructura y Materiales
La estructura que fue diseñada por el ingeniero civil Robert Maillart se hizo a partir de acero estándar con piezas prefabricadas, que van desde las columnas, en la retícula, con los ejes principales que cuentan con una separación de 2.80 m de separación y trabes que las unen para formar marcos rígidos de acero. A su vez en el entrepiso se hizo de piezas de acero extruido horizontales de 0. 20 x 0.15m a cada 0.90m aprox. y recubierto de aislamientos y madera en su parte superior y en su parte inferior un plafón.
Esta postura de piezas prefabricadas, va desde las escaleras que contiene acero laminado, placas de reja de acero, barandas de tubular extruido y piezas de vidrio de 0.30 m x 0.30m, lo cual mantiene una ligereza y transparencia a lo largo de la rue interieur, hasta el domo hecho de piezas de acero y vidrio que coronan estos calles-escalera.
Se puede ver también el recubrimiento con lámina de acero en la parte frontal que se despliega en los locales comerciales. La fachada frontal se encuentra totalmente acristalada, tiene cojinetes de fricción en el vidrio, que es una innovación para su tiempo.
También podemos observar el acristalamiento mediante los muros de vidrio que se localizan en los acceso de edificio y en algunas partes en planta baja. Sin olvidarnos de las piezas prefabricadas de concreto para los espacios exteriores como las terrazas en planta de primer nivel en el basamento y en el solárium que se ubica en la cubierta superior del edificio.
Planos
Fotos
Bibliografía
- Le Corbusier and Pierre Jeanneret : Oeuvre complète de 1929-1934. Boesiger Zurich, Willy. Les Editions D´Architecture Zurich. Switzerland,1984.



















