41 Cooper Square – Cooper Union
Introducción
41 Cooper Square, es el nuevo edificio académico para la universidad, con financiamiento privado, The Cooper Union for the Advancement of Science and Art (La Unión Cooper para el Avance de la Ciencia y el Arte), comúnmente conocida como la Cooper Union. Con este proyecto realizado por el estudio de arquitectura Morphosis Team Associate la entidad persigue manifestar el carácter, la cultura y la vitalidad de los 150 años tanto de la institución como de la ciudad en la que se fundó.
Situación
Los 16,258m2 de Cooper Union cubren la manzana completa sobre la 3rd Avenue entre East 6th y East 7th frente a Cooper Square y Taras Shevchenko Pl en la fachada trasera, bordeando el barrio del East Village en Manhattan, New York, Estados Unidos. El edificio es nombrado por su dirección principal 41 Cooper Square.
El East Village ha sido desde hace mucho un barrio amable en el que los vecinos transmiten su forma de ser y gustos, independientemente de lo que piensen quienes lo visitan. Thom Mayne de la firma de arquitectura Morphosis tomó este legado en cuenta para el diseño del nuevo edificio de la Cooper Union, una instalación con 16,258m2 que contiene estudios, aulas y laboratorios para desarrollar programas de arte, arquitectura e ingeniería
Concepto

El 41 Cooper Square aspira a reflejar el objetivo buscado por la institución, crear un edificio emblemático que refleje sus valores y aspiraciones como centro para la educación avanzada e innovadora en el Arte, la Arquitectura y la Ingeniería. El edificio ha sido definido como una plaza vertical apilada, organizada en torno a un atrio central que fomenta el intercambio social.
Plaza vertical
Internamente, el edificio se concibe como un vehículo para fomentar la colaboración y el diálogo interdisciplinario entre las tres escuelas de la universidad, anteriormente ubicadas en edificios separados.
Esta plaza vertical es el corazón social del edificio, proporcionando un lugar para reuniones improvisadas o planificadas, reuniones estudiantiles, conferencias, y para el debate intelectual que define el ambiente académico.
Espacios
El nuevo edificio se eleva 9 plantas sobre rasante y cuenta con dos sótanos.
Interior
El espacio central, una plaza vertical, pensado para el intercambio social, intelectual y creativo, es el corazón del nuevo edificio académico.
Desde el vestíbulo de entrada, cuya altura llega hasta la última planta del edificio, una gran escalera de 6.10m de ancho y recubierta con una ondulante celosía asciende cuatro niveles hasta terminan en una sala acristalada de doble altura, con vistas a la ciudad y destinada a los estudiantes al igual que el Ware & Drucker Student Lounge, que alberga un pequeño servicio de cafetería. La gran escalera se utiliza tanto para el ascenso como para espacio recreativo de los estudiantes.
En las diferentes plantas se ubican numerosos vestíbulos destinados a la sociabilización de los estudiantes, numerosos espacios de reuniones, armarios y zonas de descanso con vistas al paisaje urbano, siempre en torno al atrio central. Pasarelas abiertas y flotantes, “skyways”, atraviesan el atrio para crear conexiones entre estos espacios informales, además de dos escaleras estándar en las esquinas y tres ascensores de pasajeros.
Los ascensores primarios paran en la primera, quinta y octava plantas, animando a los ocupantes a utilizar las grandes escaleras y puentes elevados. Los secundarios paran en cada planta, en cumplimiento de las normativas y para ser utilizados en determinadas tareas como el movimiento de materiales, obras de arte o equipos.

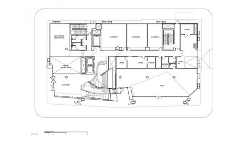
El programa académico y de laboratorio incluye salas de exposiciones, salón de actos, sala de estar, un espacio de usos múltiples, y locales comerciales.
Diseñado principalmente para albergar la Escuela de Ingeniería de la Cooper Union y la Escuela de Arte, los primeros 8 pisos sobre rasante están dedicados a las aulas, pequeños laboratorios de ingeniería, salones de estudio, espacio de estudio de arte, y oficinas de la facultad. El piso 9, está dedicado por completo a la Escuela de Arte, además de los espacios de estudio de arte ubicados en todo el edificio.
Sótanos
El sótano más bajo está casi completamente ocupado por grades talleres mecánicos de la escuela y laboratorios de diseño, así como gran parte de la infraestructura de climatización y suministro.
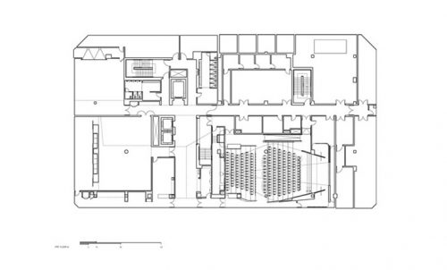
El primer sótano del edificio alberga principalmente el Auditorio Frederick P. Rose, una sala de conferencias más pequeña, 198 asistentes, diseñada como alternativa a la Gran Sala. También el Salón de Conferencias Menschel en el primer sótano ofrece un espacio tanto para clases como para reuniones, contando con un sistema de videoconferencia de alta definición vinculado a otros dos espacios similares en los pisos superiores del edificio.
Exterior
El edificio que es una continuación del espíritu de la institución, una educación gratuita, abierta y accesible, se abre simbólicamente a la ciudad.
Transparencias visuales y espacios públicos accesibles conectan la institución con su contexto urbano a nivel físico, social y cultural. A nivel de calle, la fachada transparente invita al vecindario a observar y participar en la intensidad de la actividad que contiene. Muchas de las funciones públicas, una galería de exposiciones, sala de juntas y un auditorio de doscientos asientos, son accesibles en un nivel subterráneo.
En respuesta a su contexto urbano, la fachada esculpida establece una identidad distintiva para Cooper Square. La entrada curva del edificio se levanta para atraer a la gente hacia el vestíbulo, en un gesto de deferencia hacia el edificio histórico de la Fundación. La fachada registra el icónico perfil curvo del atrio central como una figura de cristal que parece estar tallada en la fachada de la Tercera Avenida, conectando el centro creativo y social del edificio con la calle.
Estructura
Este espacio académico en la Cooper Union es una estructura de nueve pisos cuyas cuatro fachadas articuladas se elevan por encima de una base estructural de cristal empotrada de dos niveles con columnas inclinadas expuestas vertidas in situ. Desde el vestíbulo de entrada, la circulación primaria se produce dentro de un atrio central o «campus vertical» que se eleva a la altura total del edificio. Este espacio conectivo abierto, atravesado en los distintos niveles por escaleras de acero estructural y de puentes de hormigón, permite el movimiento interactivo en todo el edificio, mientras que la apertura de corredores permite vista a los edificios adyacentes. Varios materiales estructurales complementan el concepto arquitectónico deseado y apoyan una serie de iniciativas sostenibles en el diseño de la estructura, que le hecho ganan una certificación LEED Platinum.
Materiales

41 Cooper Square es el primer edificio laboratorio académico con certificación LEED en la ciudad de Nueva York, con una calificación de Platino por sus avanzadas iniciativas de construcción verde. En su construcción se ha utilizado principalmente acero, aluminio, cristal y hormigón armado, este último visible en las columnas estructurales inclinadas exteriores y en parte de la fachada trasera donde las marcas del encofrado han sido utilizadas como elemento decorativo.
Fachada
Una piel exterior creada por una capa semitransparente de acero inoxidable perforado recubre la fachada acristalada del edificio para proporcionar un control ambiental interior, mientras que a través de las transparencias permite revelar la actividad creativa que ocurre dentro. Los paneles de cristal de la pared exterior están enmarcados en aluminio.
Los paneles de rejilla reducen el impacto de la radiación solar ayudando a controlar el calor durante el verano y a aislar los espacios interiores en invierno.
Paneles metálicos

Se fabricaron 304 paneles de acero inoxidable con un acabado “cabello de ángel” cuyas finas líneas ayudarán a ocultar el desgaste y rasguños que puedan acumularse con el paso de los años. Los orificios de perforación tiene un diámetro de 1/8 pulgadas y cubren entre el 50-90% de la superficie de los paneles, permitiendo las vistas hacia el exterior y reduciendo al mismo tiempo los reflejos. Los paneles son de 0.60×1.82m y se fijan con tornillos de acero al marco de aluminio. Estas secciones unificadas de paneles se conectan con el borde de la losa mediante un sistema de ingeniería con extrusiones de aluminio. En su mayor parte los paneles metálicos se encuentran a 0.30cm de distancia de la pared interior de vidrio, pero en la fachada oeste esta distancia aumenta hasta 3.04/3.66m formando un dosel encima de la entrada.
Cristales
Excepto en unos pocos lugares donde la cara de metal tira hacia atrás para revelar todas las secciones de cristal, la pared interior del edificio se compone de un sistema de pared ventana por fuera de la losa. Entre losas el sistema incluye un tímpano pintado de negro que se eleva 1.06m del suelo.
Las áreas expuestas de vidrio son muros cortina que fueron estructuralmente unificados y ensamblados en los marcos de aluminio.
Energía
La eficiencia energética está impulsada por el uso de calefacción radiante y paneles de refrigeración colocados en el techo, haciendo que el nuevo edificio resulte un 40% más eficiente energéticamente que un edificio estándar de su tipo. Un techo verde aísla el edificio, reduciendo el efecto «isla de calor». El agua de lluvia es filtrada y reutilizada para su mantenimiento.
La altura del atrio permite la circulación de sus ocupantes por el edificio, mejora el flujo de aire y proporciona una mayor iluminación interior durante el día. Un 75% de los espacios regularmente utilizados aprovechan la iluminación natural.
Una planta de cogeneración proporciona potencia adicional al edificio, recuperando el calor residual y reduciendo efectivamente los costos de energía.
Los laboratorios de arte y las aulas están especialmente diseñadas para dar cabida a los objetivos pedagógicos, así como las actividades de investigación actuales y futuras.






























































