Biblioteca de la Universidad Técnica de Cottbus – «IKMZ»
Introducción
A principios de 1990 se llamó a concurso para modernizar la Universidad Tecnológica de Brandeburgo, en Cottbus (BTU), eregida tras la reunificación de Alemania en la antigua ubicación de la Universidad de Ingeniería Civil y otras instituciones. Los edificios que ya estaban construidos presentaban un estilo uniforme, con la misma forma, altura y materiales.
Propuesta
En la propuesta de los arquitectos Herzog & de Meuron, presentada en 1993, se sugirió la colocación de dos edificios rectangulares en la zona situada al oeste de la ciudad universitaria, uno albergaría la biblioteca y el otro sería el auditorio principal de la universidad. Estas áreas de la universidad, también utilizadas por la población de Cottbus, se convertirían en parte de la ciudad. Pero cuando el proyecto fue retomado, en 1998, el auditorio principal ya se había alojado en otro lugar dentro del campus.
Los arquitectos llegaron a la conclusión de que la biblioteca requería un tipo diferente de construcción, sería un hito solitario dentro de la arquitectura urbana circundante que comunicaría el nuevo espíritu de la universidad y se relacionaría con el medio ambiente de muchas maneras diferentes.
Terminada en 2004 es una reserva de conocimientos con forma orgánica y brillantes colores en su interior.
Situación
La Biblioteca de la Universidad diseñada por Herzog & de Meuron fue construida en la ciudad de Cottbus, estado de Brandeburgo, Alemania, en la parte oriental del campus BTU, entre la Universidad y la ciudad.
Brandeburgo, ubicado en el este del país, es uno de los 16 Estados Federales de Alemania y forma parte de uno de los cinco Bundesländer en el territorio de la antigua República Democrática Alemana. Brandeburgo rodea a la capital del país, Berlín, pero no la incluye. Su capital es la ciudad de Potsdam.
Desde el momento de la reunificación de Alemania, la ciudad universitaria de Cottbus, perteneciente al estado de Brandeburgo, ha perdido casi el 20 % de su población, al igual que muchas otras ciudades en el este del país.
Entre los portadores de esperanza dentro de la región está la Brandenburgische Technische Universität (BTU), Universidad Técnica de Brandeburgo, al norte del centro de la ciudad, justo al lado de los edificios docentes construidos en tiempos de la RDA. En este lugar se levantó, en 2004, el espectacular edificio, con una altura de unos 32 m, situado en una pequeña colina y diseñado por los arquitectos de Basilea, Herzog & de Meuron, que sirve como biblioteca y centro de datos de la universidad, ofreciendo un fuerte contraste con su entorno.
Concepto

La planta con forma de ameba parece propagarse con el flujo del paisaje circundante que lleva al observador a preguntase si es una forma puramente accidental, resultado de una espontánea inspiración artística y expresión de los sentimientos personales de los arquitectos.
Aunque de hecho parece, a primera vista, ser una forma puramente accidental, una inspección más cercana demuestra en su configuración un propósito útil con muchos flujos diferentes de movimientos. En el desarrollo del proyecto, se realizaron modelos para trabajar las secuencias de movimiento y para probar su calidad, en particular su capacidad para reorganizar y reestructurar el espacio urbano.
Las fachadas con forma de olas, así como las secciones de planta con varios tamaños crean un continuo fluir espacial con múltiples líneas facetadas a la vista. La impresión móvil se destaca tanto a través de una escalera de caracol de colores brillantes, como a través de pisos y columnas.
Descripción
Exterior
Hacia el exterior, la biblioteca se presenta como un edificio de cristal curvado, sin bordes o esquinas, asemejándose a los diseños de una ameba gigante. La forma es inusual, sin parte delantera o trasera y con cuatro protuberancias de diferentes tamaños.
El acristalado edificio de la biblioteca se ubica frente a la entrada principal del campus. Desde este punto de vista, la biblioteca aparece como un cuerpo impresionante anclado en el parque. Cuando uno se acerca al edificio desde el centro de la ciudad o desde el norte, se ve completamente diferente, más esbelto, casi como una torre independiente. De hecho, el edificio tiene un aspecto diferente desde todas las vías de enfoque y, sin embargo, sigue siendo una sola forma continua, que fluye en su conjunto. A pesar de que parece ser orgánico y explícitamente autorreferencial, su diseño también se deriva de la voluntad expresa de prestar al sitio una nueva y distintiva calidad topográfica dentro de su contexto urbano.
Fachada

Al acercarse a la biblioteca, el patrón abstracto de la fachada se revela como una matriz de caracteres superpuestos con alfabetos del mundo. A diferencia de otro proyecto de los arquitectos en el cual utilizaron el mismo sistema de texto para la fachada, en la Biblioteca de la Universidad de Cottbus, el texto sólo se percibe como tal a partir de una distancia media, y puesto que esta grafología superpuesta no tienen contenido y no forma palabras coherentes, las letras sirven como una representación generalizada de la literatura almacenada dentro. A corta distancia, las letras se disuelven en los medios tonos de patrones abstractos: un campo de puntos blancos. Los arquitectos sostienen que la densidad de este patrón de puntos se varía para controlar la ganancia solar.
Esta fachada cumple múltiples funciones: desde la distancia, la homogeneidad del patrón refuerza la monumentalidad e importancia de la biblioteca como institución cultural y niega una fácil lectura de la escala, ya que la fachada no hace concesiones a los niveles de los pisos que se encuentran dentro. En un rango medio actúa como representante del contenido físico de la biblioteca, y desde cerca el patrón abstracto se modula para satisfacer los requisitos ambientales. Aunque complejo y matizado, el diseño de la fachada se mantiene en el perímetro. La sección revela la envolvente del edificio como un muro cortina de doble piel: la construcción típica de la Alemania de hoy, una fachada que no influye en la organización interior.
Interior
La filosofía desarrollada en el exterior del edificio también caracteriza su interior. Su forma permite la creación de salas de lectura en diferentes tamaños orientadas en diferentes direcciones, con un gran despliegue espacial. Siguiendo un trazado ortogonal, las plantas se reducen de manera que cada una tiene una forma diferente, lo que genera una atractiva tensión entre las plantas y la continua cáscara del edificio.
Los planos de Herzog & de Meuron para la Biblioteca de la Universidad de Cottbus son bastante simples. Aunque la forma ameboide contiene diferentes núcleos: de ascensores, la escalera de caracol o los mostradores de información, la disposición de las estanterías de libros y salas de lectura son las típicas en las bibliotecas, ortogonales. Sin proponer un replanteamiento radical de este arreglo estándar, Herzog & de Meuron son, sin embargo, capaces de mejorarlo mediante el uso de gráficos de gran escala.
Usando los colores puros de un patrón de prueba de la TV, los arquitectos inscriben un sistema de organización secundaria en las estanterías de libros, como una ayuda para la orientación. La función de la biblioteca se ha mejorado a través de la imposición de esta imagen arbitraria de bandas de colores. Este dispositivo “wayfinding”, encontrar el camino, es especialmente útil teniendo en cuenta la forma amorfa de las plantas y la indiferencia de la fachada en la organización interna de la biblioteca.
Espacios
La forma ameboide niega una lectura fácil de entrada. Situada sobre una colina artificial, la biblioteca parece impenetrable, una fortaleza. Sin embargo, la fachada de color blanco lechoso se mezcla con las nubes. El edificio ocupa un terreno ambiguo entre la monumentalidad y la invisibilidad.
Prescindir de ciertas áreas de suelo en las plantas por encima del vestíbulo y zona de administración, o en cada parte del edificio, otorgó una considerable libertad en el diseño de las secuencias espaciales dentro del edificio.
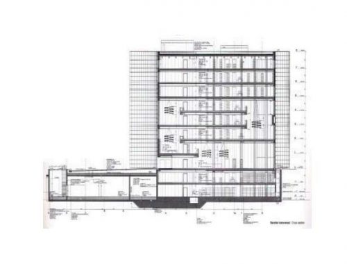
El edificio de 7 plantas, con una altura de 27.37m sobre nivel, y dos sótanos tiene una superficie total de 16.145m2 y se levanta sobre una huella de 1.500m2. El espacio de uso público es de 7.630 m2, 976m2 se dedican a la administración y 1.193m2 a estanterías cerradas.
Salas

Algunas de las salas de lectura tienen dos o tres pisos de altura lo que les otorga una sensación de gran amplitud, mientras que otras son más íntimas, con techos intencionadamente bajos. Mientras que algunas de las salas aprovechan al máximo la iluminación diurna desde un lado o desde arriba, siguiendo la estructura curvada y acristalada del edificio, otros espacios de trabajo permanecen mas ocultos por estar dispuestos a lo largo de galerías. Las áreas planas y oscuras de una planta son esencialmente huecos que albergan las estanterías de la biblioteca de libre acceso.
Con la excepción de las áreas de gestión y de negocios en la 7 ª planta y las áreas técnicas y de piscina en las dos plantas subterráneas, hay pocas áreas verdaderamente independientes. Esto permite un concepto flexible y abierto para el uso del edificio, y formas de comunicación, tanto para los usuarios individuales o en grupo. Las áreas de trabajo y de lectura están en espacios íntimos relacionados con cada una de las plantas, mientras que las estanterías de libre acceso de la biblioteca, que se organizan por áreas temáticas, se encuentran en el núcleo del edificio.
La biblioteca, con sus “chimeneas subterráneas” y las secciones especializadas abiertas al público se distribuye en las plantas de la siguiente manera:
- Planta -1 y 2ª: Artes, Economía, Derecho
- Planta 3ª y 4ª: Arquitectura, Ingeniería Civil, Tecnología
- Planta 5ª y 6ª: Ciencias Naturales, Medio Ambiente, Informática
En el segundo nivel subterráneo los pasillos se encuentran cerrados al público. La biblioteca dispone de dos sótanos utilizados para el almacenamiento y reparación de libros.
Centro multimedia
El centro multimedia ocupa la primera planta, con instalaciones de producción multimedia, así como para entornos de tele-enseñanza y tele-aprendizaje. En la planta baja, hay un mostrador de recepción, un mostrador para todos los servicios de la CCIM / IKMZ y un área de exposición.
Una condición importante para la estructura de la oferta en el nuevo edificio es el sistema de acceso en red. Este es un moderno sistema de alta capacidad basado en una completa infraestructura de fibra óptica desde el centro hacia las estaciones de trabajo individuales.
Escalera espiral
Una escalera espiral, con 6m de diámetro, atraviesa toda la estructura y comunica todas las plantas. Como un objeto escultórico independiente, proporciona orientación dentro del edificio
Las escaleras son tan amplias que no sólo garantizan el acceso inmediato a todos los pisos a la gente con prisa, sino que también ofrecen espacio para que otros se detengan a conversan por un momento.
Estructura
Su estructura de hormigón armado y acero se despliega en 9 plantas, 2 subterráneas, que se organizan alrededor de núcleos cilíndricos de comunicación cortados por secciones rectas para crear espacios diferentes.
La estructura está soportada por un orden de pilares que sigue un orden reticular, excepto en el contorno donde adopta una forma ameboide, y que permite jugar con las alturas. Esta estructura está cubierta por un cerramiento homogéneo doble, formado en la parte interior por ventanas abatibles y en la exterior por vidrio de seguridad serigrafiado.
Materiales
Salas de lectura
La combinación de colores en las salas de lectura, con su tranquila atmósfera de concentración, es de color gris y blanco.
Los problemas de la arquitectura suelen ser el espacio, la luz y las vistas. Las áreas en el interior del edificio, donde se almacenan los libros y otros medios de comunicación, se bañan en color. Los colores del espectro se han pintado en franjas en los suelos, soportes y muros, siguiendo un sistema ortogonal racional. También ayudan a la orientación, pero sin un código definido de color para los diferentes campos de estudio en el edificio, turnándose el verde con rosa, azul, amarillo y magenta. Los colores se reflejan en los techos metálicos, estantes y paredes divisorias hechas de metal desplegado, creando un efecto casi psicodélico.

Los colores indicadores en las salas de la Biblioteca de Cottbus son útiles ya que ayudan a avanzar en una teoría sobre el papel de la biblioteca en la cultura contemporánea. A pesar de los avances tecnológicos, la biblioteca sigue siendo un repositorio de libros físicos. El patrón de prueba de la TV representa «nuevos medios», aunque es en sí mismo anticuado, un remanente de los días anteriores al ciclo de noticias las 24 horas y la transmisión a la carta. La imagen sigue siendo arquitectónicamente útil, pero su función original ya no es relevante. La historia se incrustó en el edificio como recordatorio, “la televisión puede ser un simple prólogo de la era del video o de Internet, pero los libros nunca serán remplazados”.
Fachadas
La fachada secundaria, que ocupa una superficie de 5800m², se compone de paneles cuadrados de vidrio de seguridad, sostenidos en 4 puntos, cuyo lado exterior está recubierto con la impresión de pantalla. El mismo patrón de impresión de pantalla se aplica a la fachada principal, las ventanas de aluminio y cirstales aislantes.
Un velo blanco se imprime en ambos lados de la cáscara de cristal del edificio. Textos en diferentes idiomas y alfabetos se han superpuesto en tantas capas que ya no son legibles, pero crearon un patrón de resultados cuyo origen en el mundo de los signos escritos es inconfundible. El patrón impreso rompe el reflejo, elimina la dureza del vidrio y hace homogéneo el cuerpo del edificio.
Video





































