BP Building
Introducción
El BP Building, también conocido como Torre Axa-Royale Belge, fue diseño por los arquitectos Léon Stynen y Paul De Meyer, en colaboración con J. Reusens, como un edificio de oficinas en una zona verde de Amberes.
El 5 de Marzo de 2001 el edificio fue catalogado como Monumento protegido y en 2019 obtuvo la distinción de Patrimonio Arquitectónico no sólo por su novedoso sistema constructivo, también por su valor histórico.
Historia
British Petroleum encargó a los arquitectos Léon Stynen y Paul De Meyer el diseño de una nueva sede. Después de numerosas charlas entre cliente y arquitectos, BP adquirió un terreno de 7000m2 en las afueras de la ciudad, cerca de las principales vías de tráfico y no en el centro histórico de Amberes como fue la primera intención de la compañía.
Los primeros bocetos se realizaron en 1959 y ya contemplaban la idea de una estructura colgante. Para bajar costes se redujo el número de plantas, el tamaño del club de reuniones panorámico y se eliminó el amplio auditorio de la planta baja.
Mejoras
2001
Se renovaron los interiores de forma exhaustiva, perdiendo gran parte de su aspecto original.
2014 – 2016
Steenmeijer Architecten y Patine Architecten realizaron trabajos de renovación, ampliando los pisos 12 y 13, así como mejoras estructurales y de sostenibilidad en fachadas e instalaciones. También se amplió el vestíbulo en planta baja y se modernizaron los interiores
2018 – 2021
En 2021 la segunda planta del edificio fue sometida a una intensa renovación realizada por Studio Farris Architects.
Se demolieron las particiones existentes y se diseñó un nuevo espacio de trabajo aprovechando al máximo la transparencia y estructura original del edificio.
La nueva distribución realza las particiones determinadas por la disposición de los cables en la fachada y, al mismo tiempo, proporciona una mayor apertura a los espacios de trabajo y a las distintas zonas de descanso, generando una interacción sólida y continua con el exterior.
Ubicación
El edificio se ubica en una zona verde en las afueras del Centro Histórico de la ciudad de Amberes, Bélgica, en la esquina de Jan Van Rijswijcklaan, la principal vía de acceso al centro de la ciudad desde Bruselas, y Camille Huysmanslaan.
Al elegir un terreno fuera del centro de la ciudad, la empresa se adelantó a una tendencia emergente entre las grandes empresas de establecer sus oficinas en la periferia, cerca de las carreteras principales.
Concepto
Stynen fusiona innovación técnica, lenguaje arquitectónico moderno y apertura espacial remarcando la ligereza visual, la optimización estructural y la pureza formal.
El brutalismo refinado de la monumental estructura portante, en particular, y la retícula equilibrada de los muros cortina, revelan la admiración que Stynen mostraba hacia Le Corbusier, por un lado, y Ludwig Mies van der Rohe, por otro. Al liberar los espacios interiores de muros de carga y columnas se crearon espacios abiertos y adaptables, reflejando la afinidad del arquitecto con el racionalismo moderno.
En el diseño se asumió que la forma debía seguir a la técnica y por eso la lógica estructural guía la forma del edificio. La gran viga en la cima y los cables visibles son más que elementos constructivos, son símbolos de modernidad, eficiencia y audacia.
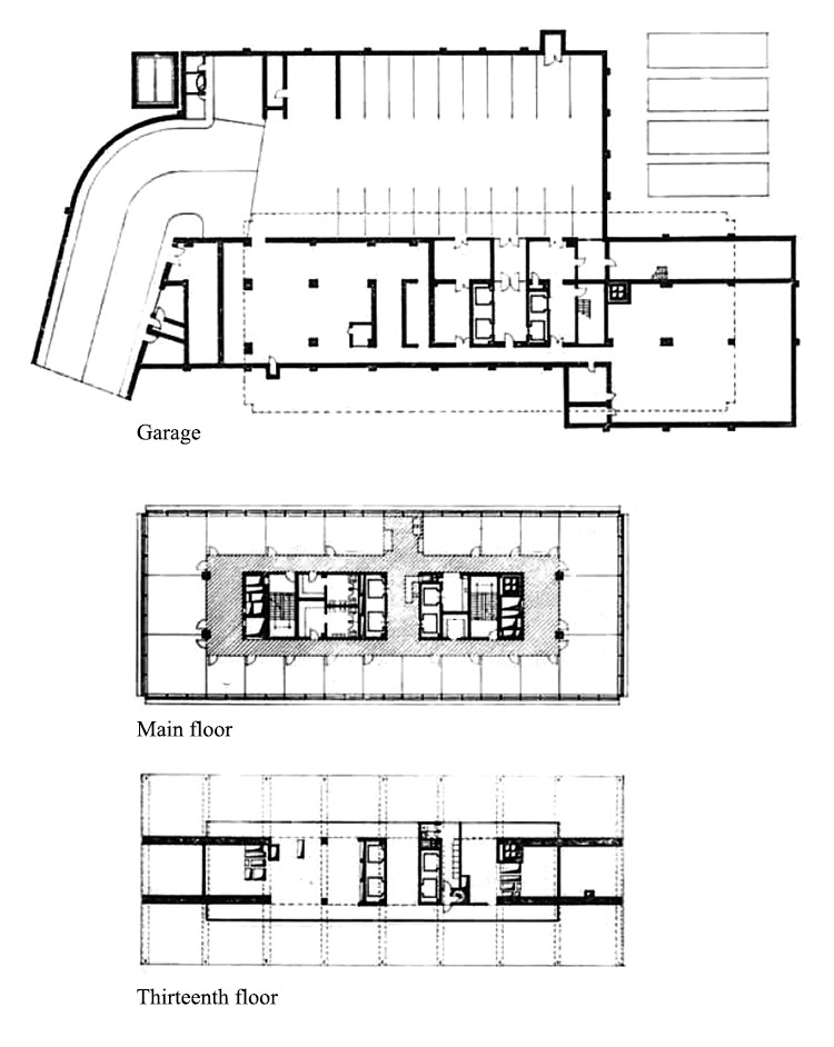
Espacios
El edificio es de estilo modernista de posguerra, con una superficie de 10045m2 distribuidos en 12 plantas ocupadas por oficinas. Además de disponer de 168 plazas de parking subterráneo al que se accede a través de una rampa, hay un espacio dedicado a archivos.
Originalmente el edificio ofrecía un amplio vestíbulo en la planta baja, a nivel de suelo.
En la planta 10 se encuentra un club para esparcimiento del personal y en la última planta las salas técnicas.
Estructura
Los voladizos y la retícula de la fachada se sustentan mediante cables de acero que cuelgan de nueve vigas transversales de 18m de largo situadas en la parte superior del edificio y que descansan sobre las dos vigas principales, las cuales, a su vez, descargan todo el peso sobre el núcleo de hormigón armado.
Este sistema de estructura suspendida que permite espacios interiores diáfanos nunca se había utilizado en Europa hasta ese momento.
El núcleo central donde se ubican los ascensores, escaleras y conductos se apoya sobre una losa de cimentación general de hormigón construida 6,00m por debajo del nivel de la calle. Con una altura de 57m, un ancho de 6m y 35m de largo este elemento portante que proporciona estabilidad a la estructura está construido con 14 columnas de acero dispuestas en dos filas, unidas mediante soldaduras a la altura de cada planta. De las siete columnas que componen cada fila, las cinco centrales se recubrieron con paneles de hormigón armado prefabricados in situ para mejorar la estabilidad.
Perpendiculares a estas vigas corren las 9 que se ubican en la terraza y de las cuales cuelgan los cables que sostienen las losas de 11 pisos. Las 5 vigas centrales se ubican sobre el núcleo portante y todas tienen un voladizo de 6m a cada lado.
Los cables de acero permanecen visibles por encima del piso 12, mientras que por debajo están integrados y ocultos en los marcos verticales de la fachada.
La torre se basó en un módulo cuadrado de 1,93 m, correspondiente al ancho de las ventanas, siendo utilizado como referencia general.
Los interiores se realizaron íntegramente con elementos de madera prefabricados que podían ensamblarse de maneras alternativas, según las diferentes necesidades de distribución.
Materiales
Fachada
El muro cortina de las fachadas es de vidrio con rejilla metálica que integra tanto las persianas como los estrechos pasillos destinados a la limpieza de la cristalería.
La mayor parte de las ventanas, con doble acristalamiento, son modulares y fijas, alternando con otras practicables.
Otros materiales
Se utilizó mármol blanco Arabescato para los suelos, teca Moulmein para los marcos exteriores de ventanas y brise-soleil y madera de iroko para los marcos interiores y falsos techos. En las ventanas practicables los marcos se realizaron en bronce.
La base, los forjados y la estructura portante son de hormigón visto.





















