Arquitecto
Año de Construcción
1975-1976
Área del terreno
57 m2
Área (huella)
34 m2
Área construida
65 m2
Ubicación
Sumiyoshi, Osaka, Japon

Introducción

Uno de los primeros trabajos del arquitecto autodidacta Tadao Ando es la Casa Azuma, también llamada Casa Row, en Sumiyoshi, donde dividió en tres un espacio dedicado a la vida cotidiana, compuesto por una geometría austera,  mediante la inserción de un espacio abstracto destinado al juego del viento y la luz. Su objetivo, afirma, fue introducir un interrogante en la inercia que ha invadido a la vivienda humana.

Ando, que se ve a sí mismo como un luchador-arquitecto , desarrolló una serie de propuestas audaces para casas pequeñas. Entre ellas la Casa Azuma o Casa Row en Sumiyoshi es su logro más importante,  una fortaleza acorde con un arquitecto que intenta desarrollar sus habilidades a través de repetidas «pruebas de combate». También es una casa en la que las características de su trabajo posterior ya son evidentes. Gracias a ella, en 1976 recibe un premio de la Asociación Japonesa de Arquitectura.

Situación

Situada en Sumiyoshi, reemplaza a una de las viviendas tradicionales de la zona construidas en madera. Se ubica en el centro de tres casas adosadas construidas anteriormente, en Sumiyoshi, distrito del centro de Osaka, Japón.

La Casa Azuma en Sumiyoshi se encuentra en el “shitumachi” (ciudad baja) de Osaka. En medio de este vecindario de clase trabajadora lleno de los ruidos típicos de la vida cotidiana,  la casa se levanta como un muro mudo. Si bien la zona en la que está emplazada no es de las más caóticas de la ciudad, existe un evidente contraste entre esta “caja de hormigón” y el ambiente que la rodea.

Conocido como el distrito de «Deep South» de Osaka, esta área es donde Ando comenzó su carrera como arquitecto. Desde finales de la década de 1960 hasta principios de la década de 1970, el arquitecto, se enfrascó en una lucha para crear espacios de vida amplios en sitios estrechos. Fue una lucha establecer su identidad como arquitecto mientras luchaba con factores complejos, como la tradición y la modernidad, los deseos y los presupuestos limitados de los clientes, las exigencias de la vida cotidiana y las exigencias de la estética en una ciudad que todavía conserva un fuerte tradición asiática

Concepto

La Casa Azuma desarrolla un tema de diseño, pero también  un tema social.  Tadao  Ando presenta una caja de hormigón en medio de las destartaladas casas de madera que se amontonan en las áreas centrales de Osaka y crea un espacio de vida altamente autosuficiente dentro de esa caja.  Garantiza la privacidad individual, algo que las casas tradicionales no podían proporcionar y crea un espacio residencial que permite el desarrollo de individuos modernos. Es una expresión de la creencia de Ando de que la casa es precisamente la construcción que puede cambiar a la sociedad.

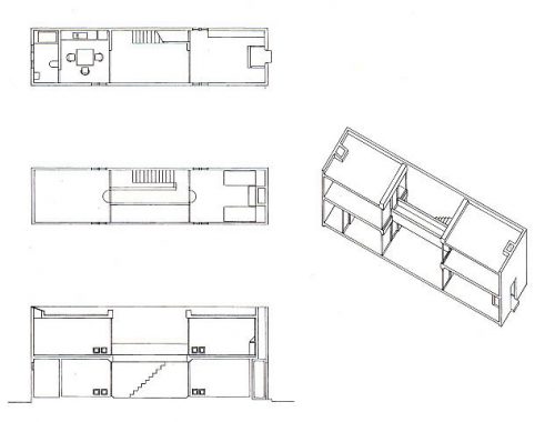
Construida entre medianeras, esta vivienda se alza en un lote de 57.3 m2 con una superficie total construida es de 64.7 m2, dividida en tres secciones iguales: dos volúmenes y un patio. Se trata de una caja de hormigón que ocupa todo el solar. El edificio, centrípeto en cuanto a su organización del espacio tiene una planta tripartita centrada en un patio descubierto.

El tratamiento que da Ando a la naturaleza en la ciudad es otro de los puntos que distingue su trabajo. Convencido de que la relación entre ella y el ser humano es fundamental para éste último,  incorpora a la construcción un estilo de vida donde los habitantes de la casa participan de la naturaleza. En invierno con el frío o la lluvia, o en verano con el calor sus habitantes salen al exterior, ya que deben atravesar el patio descubierto para ir al lavabo, sintiendo el viento en la cara, la lluvia o pudiendo mirar hacia el cielo. Este patio abierto es un “oasis” dentro del bullicio de la ciudad, un lugar en contacto con la naturaleza dentro del hogar,  que permite la entrada de luz, aire, lluvia, frío, calor, ver el movimiento de las nubes o del sol, una ventana que permite convivir con ella.

Espacios

La austera fachada, cuyo único ornamento es la forma de presentar el hormigón expuesto,  detalle que se convertiría en característica de las obras de Ando, nos muestra una composición axialmente simétrica con una entrada en su centro, las dos formas rectangulares que el arquitecto utiliza en su alzado son sólo dos, el contorno general del edificio y la entrada.

La totalidad del austero espacio ha sido dividido longitudinalmente en 3 partes,  dos volúmenes interiores cerrados y de igual tamaño que contienen la zona de la sala y la zona de cocina y baño en la planta baja y dormitorio y estudio en la planta superior, separados y a la vez unidos por un patio al aire libre.  La tripartición se aplica al edificio como un todo y se hace eco del ritmo de largo-corto-largo de la fachada, es decir, pared-umbral-pared.

Patio y naturaleza

El hecho que hace tan particular este patio es que no hay forma de cruzar a ambos lados de la casa sin pasar por el exterior, sin ponerse en contacto con la naturaleza. Ante quienes ven un inconveniente en lugar de un beneficio por este espacio, Tadao Ando defiende su diseño con las siguientes palabras:

“…En el momento, pensé en el diseño residencial como la creación de un lugar donde las personas pueden vivir como ellos mismos lo desean. Si sienten frío, pueden ponerse una capa adicional de ropa. Si se sienten calor, pueden descartar piezas de ropa. Lo importante es el espacio, no un dispositivo para el control ambiental, sino algo definido y receptivo a la vida humana … No importa cuán avanzada se vuelva la sociedad, institucional o tecnológicamente, una casa en la que la naturaleza puede ser percibida representa para mí el entorno ideal en que vivir…”

Al atravesar la puerta de entrada se gira a la izquierda y se accede a la sala, desde la sala al  patio donde se vuelve a girar para acceder a la escalera que conduce a la planta superior o se sigue recto para llegar a la cocina y el baño. Un plan de circulación complejo transforma una geometría simple en una rica experiencia espacial. Esta progresión es una técnica para transformar a través de la experiencia un frío esquema geométrico en un lugar de vida, y es fundamental para la arquitectura de Ando. El tratamiento que el arquitecto da a la naturaleza en la ciudad es otra cuestión que distingue su trabajo.

En la planta baja se ubican una sala, la cocina. el baño, separadas por el patio externo que es el punto focal de la vida familiar,  y la escalera que conduce hacia la planta superior, donde se encuentran enfrentados un dormitorio y el estudio,  comunicados por una pasarela. Este espacio central descubierto es la única fuente de luz natural de toda la vivienda.

El patio, que actúa como eje de la vida cotidiana de la casa, separa la sala de estar, situada en un extremo de la planta baja, de la cocina-comedor y el baño, situados en otro. En la planta superior, el estudio se encara con el dormitorio principal situado al otro lado del patio central, al que se llega por un puente. El edificio presenta una fachada ciega a la calle. La presencia de una puerta sugiere el uso de esta caja.

Materiales

La materia presente en esta construcción tiene un efecto psicológico en el observador precisamente porque la ausencia de ornamentos invita a una empatía extraordinaria. Esa es la razón por la cual se dice que los edificios de Tadao Ando son la máxima expresión del sentido de belleza japonés. Un “lugar de la nada” está en la naturaleza misma de la cultura japonesa.

El hormigón armado expuesto utilizado en esta vivienda es presentado como el único elemento estructural ornamental, tanto en la envolvente exterior como los muros interiores, acompañados con algunas paredes de vidrio que miran hacia el patio y algunos acabados de madera

Habitaciones

En cada habitación hay cuatro superficies de concreto expuesto. Una de ellas es la losa del suelo que, aunque está cubierta con madera como aislamiento permite la conducción de energía térmica por las otras tres paredes y el techo. La cuarta pared es un plano de vidrio de suelo a techo, con una puerta también de vidrio y marcos metálicos.

Patio

El patio abierto, rodeado de muros de hormigón, vidrio y pizarra, refleja la luz incidente y causa sombras complejas.

Videos

Planos

Fotos

Emplazamiento
Secciones, alzados y plantas