Casa E-1027
Introducción
A finales de 1920 la arquitecta y diseñadora Eileen Gray, diseñó y construyó a orillas del mar la Casa E-1027, que se convertiría en un hito de la arquitectura moderna. Fue construida como residencia de verano para compartir con su amante, el crítico Jean Badovici. El nombre de la casa, E-1027, suena impersonal, se trata de un código numérico resultante de combinar sus iniciales, «E» para Eileen, ’10 ‘Jean, ‘2’ Badovici, Gray ‘7 ‘.
La casa fue decayendo con el paso de los años y en la década de los 90, los muebles, también diseñados por Gray fueron vendidos por su propietario para financiar la reparación de la vivienda, pese a que los arreglos realizados no impidieron que la casa siguiese su deterioro hasta el 2000, año en que se consiguió rehabilitar más adecuadamente. Aunque la reforma fue casi integral, no fue duradera y volvió a caer en mal estado, comenzándose una segunda restauración.
Relación con Le Corbusier
Aún en vida de la arquitecta, la casa fue abandonada por su creadora. Pese a la amistad que la unía a Le Corbusier, Gray resultó tremendamente contrariada por las alteraciones que el arquitecto realizó en la villa durante su ausencia, 1937-39, especialmente los murales que pintó en las paredes y que Eileen sentía habían destrozado el carácter de la vivienda, considerándolos directamente como vandalismo. Nunca volvió a la casa después de este percance y comenzó su deterioro. Le Corbusier que siempre demostró un sentimiento muy particular por la casa E-1027, compró una propiedad al este de la misma, donde construyó una pequeña y rústica cabaña, «Le Cabanon», donde iba a trabajar y a descansar contemplando la tranquilidad del paisaje, o tomando baños diarios en sus playas. Después de su muerte, en esas mismas aguas, toda la zona fue declarada “Espacio Moderno” y considerado área de importancia cultural e histórica, reconociendo la casa E-1024 como elemento fundamental del lugar.
Situación

En una colina con vistas al Mediterráneo en Roquebrune-Cap-Martin, Francia, Eileen Gray construyó la Casa E-1027 para compartir con su amante, el crítico Jean Badovici.
Gray levantó la casa en un tramo aislado de la Costa Azul, en el lado oeste de Cap Martin, con vistas a la bahía de Mónaco. La arquitecta escogió esta ubicación por la belleza de sus vistas y construyó la casa directamente sobre el terreno.
Concepto
Gray deseaba construir una casa que interactuara con los elementos naturales que la rodeaban, estudió cuidadosamente el viento y el ángulo del sol en diferentes momentos del día y del año, y de esta manera fue capaz de construir una estructura con una evolución constante, siguiendo su relación con el sol, el viento y el mar.
La estructura se eleva sobre pilotis, las esbeltas columnas blancas que Le Corbusier había hecho famosas, los espacios fluyen de forma fluida entre sí, y hacia fuera en las terrazas y balcones de las amplias habitaciones. Sus blancas paredes, fuerte horizontalidad, los decks, sus sinuosas barandas metálicas y su escaso mobiliario hacen que parezca un barco atracado, flotando entre el paisaje y el mar.
Espacios

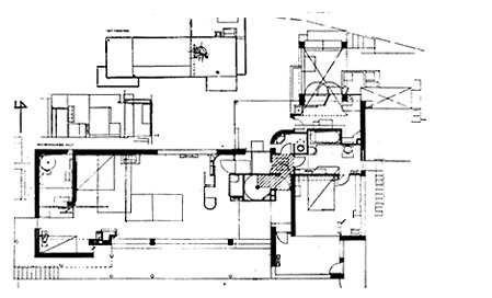
Con una planta en forma de L, dos plantas y techo plano, la casa dispone de ventanas que van desde el suelo hasta el techo y una escalera caracol para acceder a la habitación de invitados. Se trata de una casa abierta y cerrada a la vez, haciendo confusa la frontera entre la arquitectura y la decoración.
Gray diseñó la vivienda de forma que el interior y el exterior fluyeran juntos. Sus habitaciones no sólo dan a un balcón, sino que las persianas, mamparas y ventanas son móviles, permitiendo a sus habitantes participar, en todo momento, con la armonía del mar y las colinas que rodean la vivienda. La casa fue diseñada como una “maison minimum”, simple y eficiente, con áreas de muebles empotrados que no ocupan mucho espacio. El mobiliario original diseñado por la arquitecta era de cromo, cuero, madera, vidrio y corcho.
El nivel principal de la casa consta de un gran salón abierto, un estudio-dormitorio, una cocina y un baño. En la planta más baja encontramos una gran sala de estar, un dormitorio para invitados, cuarto de servicio, y un aseo. En el techo se construyó un jardín que incluye una cocina al aire libre conectada a la cocina interior y una pequeña zona para tomar el sol.
Diseño
Si bien la Casa E-1027 pertenece a una construcción del movimiento moderno y empleó muchos de los principios fundamentales del creador del movimiento, Le Corbusier, Gray se opuso al conocido concepto del arquitecto que consideró “la casa como una máquina para vivir”, describiéndola como un organismo vivo, una extensión de la experiencia humana, afirmando que “ no es una cuestión de simplemente construir hermosos conjuntos de líneas, sino sobre todo, viviendas para las personas”…”las fórmulas no son nada”, insistió, …”la vida es todo”.
Gray creó una villa con un diseño abierto y flexible, que permite al usuario experimentar el espacio de la vida como un todo orgánico que engloba al propio ser, a la casa y al entorno exterior. Al mismo tiempo, sus diseños permiten al usuario mantener una sensación de intimidad y privacidad, los cuales ella misma valora enormemente. Con E.1027 Gray hizo una contribución singular y fundamental hacia la arquitectura moderna.
Video





















