Casa Gilardi
Introducción
En una calle de la Ciudad de México, en un estrecho y alargado terreno de 10×36 metros, entre tres muros medianeros y una fachada a la línea municipal, Barragán, a sus 80 años de edad y tras casi 10 años de inactividad, realiza su última obra, quizás la más paradigmática de todas.
Situación
La casa se ubica dentro del Distrito Federal de Mexico, en la colonia san miguel chapultepec, el cuál es bastante conocido y ha ido mutando a lo largo de los años, sin embargo al parecer el entorno más próximo no fue lo que atrajo al arquitecto.
Barragán aceptó el encargo atraído por dos condicionantes del proyecto: el enorme árbol Jacarandá que se debería mantener en el solar, y la piscina solicitada por el dueño como parte del programa.
De hecho la casa se dispone de manera tal que se cierra a la calle y refuerza su interioridad.
Concepto

El mensaje universal de Luis Barragán posee respuestas capitales ya que, como él dijo: «…el hombre ha buscado siempre protegerse de la angustia y el temor. Ha procurado que los espacios que habita promuevan en su ánimo la serenidad…», dado que, como también llegó a explicar de manera por demás generosa: «…hemos trabajado […] con la esperanza de que nuestra labor […] coopere en la gran tarea de dignificar la vida humana por los senderos de la belleza y contribuya a levantar un dique contra el oleaje de deshumanización y vulgaridad. Si al lograr reunir en nuestras obras algunos de estos conceptos no logramos resolver los problemas del hombre, al menos cooperamos a hacer su vida más plena, más hermosa y más llevadera y lo ayudaremos a no caer en la desesperanza…»
En sus obras plasma todo el bagaje de conceptos Modernos y a la vez el diálogo con el entorno es fantástico. Los colores, las texturas, los elementos compositivos son producto de la cultura Mexicana. Es indudable la influencia de pintores como Diego Rivera o Frida Kalho, entre otros, en sus obras, pero en particular en esta casa.
Con respecto al uso de colores esto decía en una entrevista: “En mi actividad de arquitecto, los colores y las luces han sido siempre una constante de fundamental importancia. Ambos son elementos base en la creación de un espacio arquitectónico, ya que pueden variar las concepciones del mismo. Las paredes están hechas para volverse a pintar. Pienso que cada dos años toda la obra debe a volverse a pintar.
En esta obra, la del señor Gilardi, los colores juegan un papel muy importante. El patio es de color lila , muy vibrante. El corredor prepara el viaje a través de la casa para llegar a un espacio muy importante: el del comedor, con una alberca cubierta . De pronto, del estanque sale un muro rosa que corta el agua y casi llega a tocar el techo.
Ese muro da sentido al espacio, lo hace mágico, crea tensión alrededor. Desde el techo una linternilla baña al muro de luz y enfatiza su papel.
Por cierto que, tanto el color del muro rosa como el azul del espacio circundante fueron tomados de un famoso cuadro de Chucho Reyes. Es un gallo, de ahí salieron el magenta y el azul turquesa. “Chucho Reyes tenía un excelente ojo para el color. Dedicó su vida a las cosas bellas. No entendía de planos, pero me ayudó con el color. El color de los mercados mexicanos… el color de los dulces mexicanos… de las golosinas… la belleza de un gallo.
Colocamos los colores para la casa Gilardi pintando grandes cartulinas en mi casa, recargándolas una tras otra en las paredes, moviéndolas de lugar, jugando con ellas hasta que decidimos los colores exactos.
Les diré un secreto: la piscina tiene un muro o columna rosa que no sostiene nada. Es una pieza de color situada en el agua, por placer, para traer luz al espacio y mejorar su proporción general”
Espacios
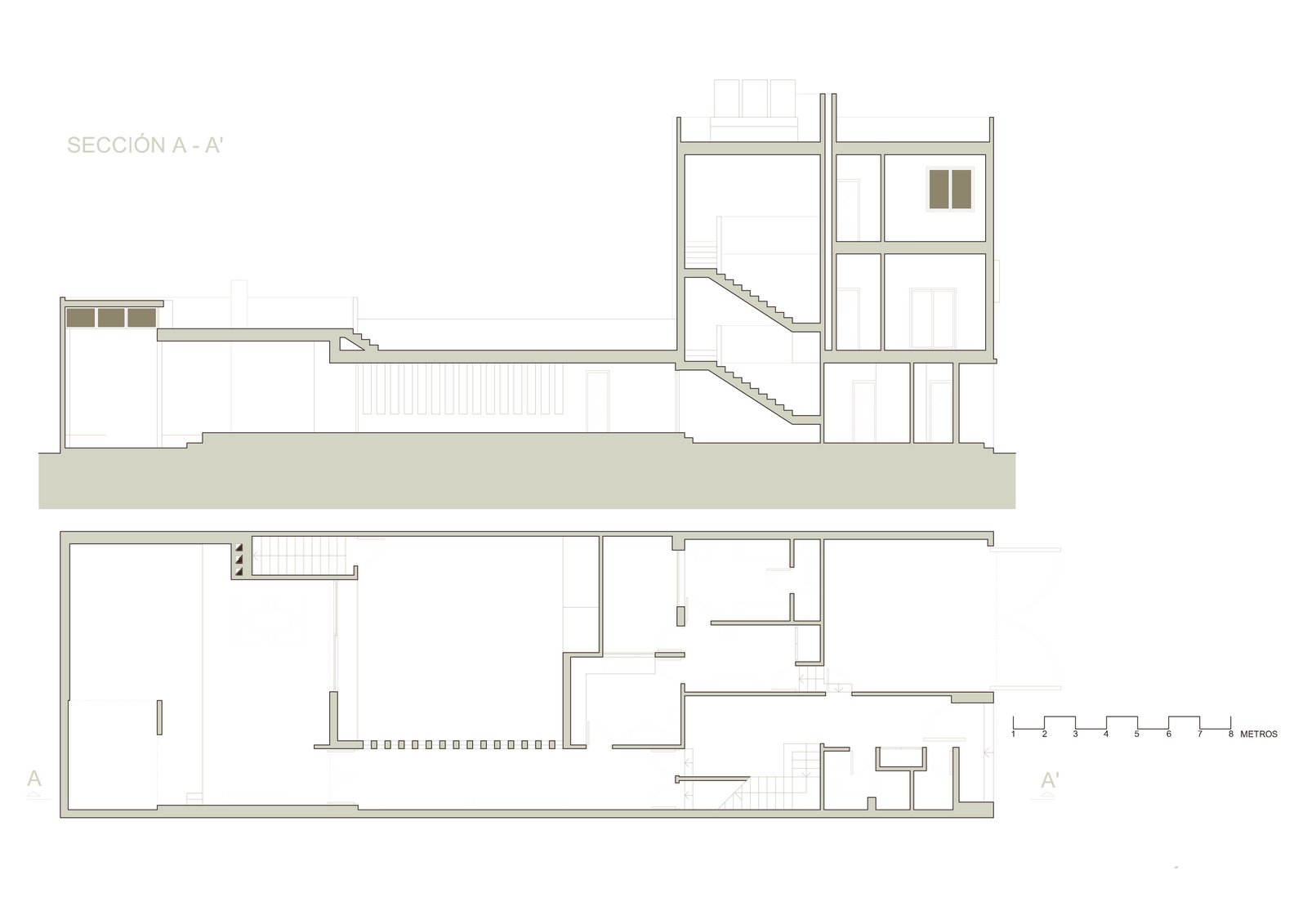
Ordenada sobre un eje a lo largo del terreno, que se desliza con un pequeño impacto urbano por fuera e intimista por dentro. El reducido pero potente volumen rosa se defiende de la calle y se vierte el interior, descomponiéndose hacia el pequeño patio conformado tanto por el volumen delantero (servicios, dormitorios) como por el trasero (salón-comedor-piscina) ambos unidos por un corredor mágico. Todo aquello configura un patio que rodea a un hermoso árbol, el cual debía ser respetado como condicionante al propietario, que resalta con sus ramas o flores los altos lienzos monacales.
La disposición en planta descubre poco a poco los espacios a través de filtros de luz y silencio. Un mundo de sensaciones: sencilla entrada, el pasillo se amplia, la escalera sin barandilla levita y asciende por el efecto de luz cenital, nos atrae un emocionante corredor invadido por la suave luz amarillenta que se filtra por una serie de aberturas verticales con vidrios de color onix, al final de la cual una puerta da paso a un espacio austero que sólo contiene un pequeño espejo de agua, una rustica mesa de comedor, sus sillas y un aparador, mientras un inquietante muro rojo sujeta el tragaluz y baña la piscina, el resto es todo luz. Esa piscina-estar-comedor, el espacio central de la casa, se convierte en un ámbito mágico donde el suelo se interrumpe en un silencioso paso entre lo sólido y lo líquido, pues el estar-comedor se instala a orilla del agua, y el muro de color rosa, que se hunde en ella, vibra con las geometrías producidas por la cambiante luz cenital que va transformando el espacio a lo largo del día.
Con pocas referencias del mundo exterior, la casa exhibe en su interior atractivos para ser disfrutados por la vivienda, afirmando su carácter introspectivo. Los ambientes se asoman al recinto interior a través de grandes superficies acristaladas.
El árbol tiene su espacio reservado, pero no actúa como protagonista, sino que es un complemento del conjunto que encuentra su escenario en el vacío del solar.
Estructura
Por ser una casa entre medianeras se optó por una estructura tradicional de muros portantes, disponiendo los locales en una cuadricula, subdividiéndola según la proporción de cada ambiente. Los muros de carga son recortados en la fachada principal por moderadas aperturas hacia la calle. Una substracción en la segunda planta genera una terraza limitada por muros altos que protege de la calle los ambientes que ahí se ubican.
Materiales
La casa está construida íntegramente en ladrillo, recubierto en la totalidad exterior por un acabado de estuco texturado que es típico de la mano de obra mexicana. Los interiores pintados de color, presentan una textura mucho mas lisa de modo que la luz se adueñe del lugar sin producir sombras por la rugosidad. De esta manera se logran brillos casi enceguecedores por ejemplo en el pasillo principal donde se sitúan unas rajas con vidrios de tono onix.























