Casa Roof Roof
Introducción
El arquitecto malayo Ken Yeang se doctoró en la Universidad de Cambridge con una tesis sobre arquitectura ecológica. Es por lo tanto un arquitecto formado en occidente sin ningún interese especial en la tradición arquitectónica de su país, es regionalista únicamente en el sentido que se relaciona con algunas condiciones locales específicas, especialmente las que tiene que ver con el clima.
Sin lugar a dudas la forma más rápida de refrescar un ambiente en una región cálida es el aire acondicionado. Aunque su utilización también conlleva objeciones, consume energía, contamina la atmósfera y es caro. A ellas hay que agregar otros factores tenidos en cuenta en determinadas regiones y arquitecturas, el factor cultural. Factor que a lo largo de los años ha determinado el tipo de construcción según el lugar de que se trate y la sociedad a la que sirve.
Entre 1980/1990 la preocupación por el calentamiento global y la contaminación atmosférica provocó que el mundo comenzara a ser contrario a la solución mecánica high-tech y a interesarse nuevamente por los sistemas tradicionales de modificación del clima, como las verandas, y todos los sistemas de control pasivo.
Situación
La casa se sitúa en un barrio residencial de Kuala Lumpur, 8 Jalan Satu, Taman Sir Ukay, en la localidad de Ampang, Malasia. Ampang está situada en la frontera entre Kuala Lumpur y el estado de Selangor.
Concepto
Se trata de una casa especialmente pensada para enfrentar el calor y la humedad ambiental del lugar. Está diseñada como un prototipo a tamaño natural de las ideas de diseños bioclimáticos de su autor………»los edificios son conceptualmente vistos como un “sistema de armarios que funcionan como filtros ambientales en el paisaje”…… El diseño es un esfuerzo sistémico para utilizar los factores climáticos de manera oportunista, para dar forma a la caja del edificio, su configuración y organización espacial.
Un claro ejemplo de ahorro energético pasivo es esta casa denominada Roof Roof House. Según Ken Yeang, la Casa Roof Roof, construida para el arquitecto y su familia, fue diseñada para sí mismo como un experimento de arquitectura, es decir, un prototipo de tamaño real para trabajar sobre las ideas de diseño bioclimáticas.
Espacios

La planificación de los espacios internos sigue una configuración radial a lo largo de un eje este-oeste y de esta manera se integran el espacio entre el edificio y las paredes de los límites del sitio, como mini-patios.
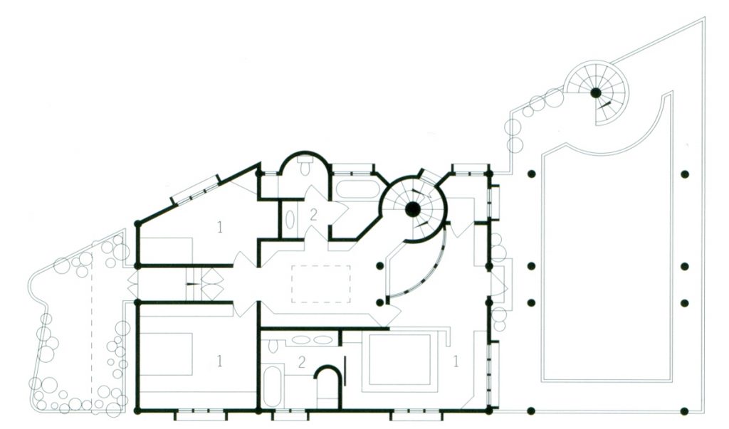
Planta baja
En esta planta se desarrolla la vida diaria. Desde el espacio para dejar el coche se accede a un porche que se abre a las demás estancias: sala de estar, comedor, cocina, dos dormitorios, baño y la terraza con piscina.
La sala de estar de la planta baja es pequeña, pues en realidad la verdadera sala de estar es el espacio exterior, alrededor de la piscina, con sus sombreados y espacios de circulación, equivalentes a una veranda, al igual que el balcón estilo claustro de la primera planta. Con su generoso espacio esta zona al aire libre es el verdadero corazón de la casa.
Planta primera
Tres dormitorios y dos baños alrededor de un distribuidor al que conduce la escalera de la planta baja.
Estratégias de climatización

Pérgola
La casa tiene un gran “bafle” que actúa como pantalla solar, como si de una sombrilla abierta se tratara, esta pérgola de lamas de hormigón apoyada en numerosas columnas, arroja franjas de sombra cambiantes sobre la terraza. Esta pantalla cubre no sólo el plano del primer piso, sino que también beneficia al sector de la piscina y terraza de la planta inferior, dándoles sombra y ayudando a refrescar las brisas en los pisos inferiores.
El diseño de esta sección de techo “bafle” se ha hecho inclinado a lo largo del edificio para reducir la insolación sobre el lado oeste y el sol del medio día, permitiendo que pase el sol de la mañana a través de sus lamas.
Además de este filtro, existe un sistema de rejillas deslizantes, paneles de vidrio, paneles sólidos y persianas ajustables que forman parte de todo el sistema de climatización, y permiten el buen funcionamiento de la “válvula”. Estos elementos manejados por los habitantes de la casa, permiten tanto la articulación del medio ambiente como el nivel de privacidad, ventilación, iluminación natural, espacios de uso, seguridad y confort.
Toda la casa está pensada como un filtro ambiental. Las puertas exteriores fueron pensadas para ser dejadas abiertas, detrás de las rejas de seguridad, favoreciendo la ventilación transversal.
Propuesta teórica

La propuesta teórica del proyecto, es el punto de vista concerniente al cerramiento del edificio como si de una “válvula” se tratara, filtrando los elementos climáticos, los no deseados, en este caso la radiación solar, y los propicios, la ventilación. En comparación con otros enfoques arquitectónicos vernáculos que respondan a las condiciones climáticas locales, la Casa Roof Roof difiere en que el diseño del techo ha sido realizado intencionalmente, no como estructura pasiva, sino para funcionar como parte de un sistema de trabajo, de ahí su analogía con una válvula.
Orientación
Su orientación norte-sur protege los espacios más importantes del sol tropical. Los espacios públicos de la planta baja miran al este y se abren a la piscina, aprovechando los vientos que van de sudeste al noroeste, para refrescar los espacios. Este viento predominante se enfría al atravesar el agua de la piscina, equivalente a la fuente en un patio, antes de entrar en los espacios de la casa, tras lo cual cuatro capas móviles, rejas correderas, paneles de vidrio, paneles sólidos y persianas regulables, se combinan para controlar el microclima en los espacios donde se realiza la vida.
Torre de ventilación
En el centro de la terraza de la cubierta, una abertura con lamas, orientadas hacia el norte, succiona el aire a través de las dos plantas de la casa, a modo de torre de ventilación.
Materiales
En su construcción se utilizó principalmente hormigón armado y hierro. La fachada principal ha sido revocada y pintada en color blanco para ayudar a rechazar los rayos del sol. En la zona de piscina se utilizaron cerámicos pequeños en tonos azules.














