Centro Municipal Distrito Sur
Introducción
El Centro Municipal Distrito Sur Rosa Ziperovich se creó como parte de una operación urbanística de gran repercusión en una ciudad de territorio muy extenso como Rosario; un proceso de descentralización y modernización municipal que tiene por objetivo favorecer la participación ciudadana y acercar la gestión de gobierno a los intereses y necesidades de los vecinos, construyendo núcleos de desarrollo, de transformación y confort para la población. Esta es una de las seis sedes creadas por la municipalidad rosarina para concretar el proceso antes mencionado.
Para el proyecto, el municipio convocó al reconocido arquitecto Alvaro Siza. Esta es la primera obra del portugués en América del Sur. En ella se puede reconocer fácilmente su estilo, con un diseño sobrio de pureza estética y síntesis formal.
El edificio toma su nombre en homenaje a la Ciudadana Ilustre Rosa Ziperovich que luchó por la educación pública y los derechos humanos.
Situación
La localización de cada Centro ha sido pensada como generadora de nuevas centralidades urbanas, con una buena accesibilidad y con características que les permitan constituirse en referentes de las áreas en que se insertan. El Centro Distrito Sur se ubica en una zona siempre postergada de la ciudad, sobre un terreno de 8200 metros cuadrados. Las inmediaciones de terreno están ocupadas por viviendas bajas, con una altura predominante de seis metros, con líneas de árboles en las aceras, formando un paisaje urbano continuo.
Concepto
El edificio se inserta en el paisaje urbano sin alterarlo, como si siempre hubiese sido parte de él. A partir del reconocimiento del entorno, Siza respetó su horizontalidad y continuidad y desarrolló la obra en una sola planta, con una geometría que se identifica con la cuadrícula de la ciudad. Así, evitó realizar un edificio monumental pero sin renunciar al protagonismo de un edificio público.
La obra se ubica en el terreno abrazando sus bordes y se abren en un punto, invitando a ingresar en la inmensa plaza cívica descubierta que forma. El esquema funcional es muy sencillo para facilitar el reconocimiento de los espacios por quienes trabajan o visitan el edificio.
El Centro toma una imagen serena, caracterizado por sus largas líneas rectas, muros blancos con una base de piedra gris y grandes ventanales.
Fiel a su estilo característico, Siza tuvo especial cuidado en la iluminación natural y la prolongación de los espacios. Además, en su obsesión por los detalles diseñó cada parte del proyecto, incluyendo el amueblamiento.
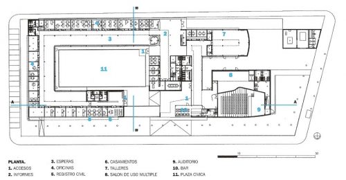
Espacios
El edificio se desarrolla en torno a una plaza cívica, con un esquema funcional claro y simple, dividido en dos áreas: una administrativa y otra socio-cultural. La vinculación entre espacios y actividades se facilita gracias al desarrollo de todo el programa en una sola planta.
Un gran pórtico de acceso conduce a la plaza central, donde los vecinos realizan actividades culturales al aire libre.
El sector cultural cubierto cuenta con un auditorio para 200 personas totalmente equipado, salas de usos múltiples y un área de talleres.
El sector administrativo rodea casi por completo la plaza y se accede por allí. Las fachadas hacia la plaza son de grandes ventanales, vinculando el interior con el exterior. Junto a los ventanales están las áreas de espera, delimitadas por un suelo de madera clara y un techo más bajo. A su lado se desarrolla la circulación, pegada a una tira de oficinas y marcada por una línea de columnas y solado de mármol.
La iluminación natural se aprovecha al máximo en el edificio. Una línea continua de ventanas ilumina la circulación por arriba del techo que cubre las áreas de espera, además de los frentes vidriados hacia la plaza. Las oficinas tienen ventanales de lado a lado y reciben luz a través de sus puertas vidriadas que las conectan entre sí y dan a la circulación.


































