Harpa-Auditorio y Centro de Congresos
Introducción
Con el objetivo de revitalizar la zona este de Reykjavik y crear una mejor conexión con el centro de la ciudad, el Auditorio y Centro de Congresos Harpa surge en la frontera entre la tierra y el mar.
Ganador del Premio Mies van der Rohe 2013, mereció por parte de Wiel Arets, presidente del jurado, el siguiente comentario:
«…Harpa ha capturado el mito de una nación – Islandia – que ha actuado conscientemente en favor de una construcción híbrida-cultural en el medio de la actual Gran Recesión. Su fachada icónica y transparente de “cuasi ladrillo” aparece como un juego cambiante de luz coloreada, promoviendo un diálogo entre la ciudad de Reykjavik y la vida interior del edificio. Al dar una identidad a una sociedad largamente conocida por sus sagas, a través de una colaboración interdisciplinaria entre Henning Larsen Architects y el artista Olafur Eliasson, este proyecto es un mensaje importante para el mundo y para el pueblo islandés, cumpliendo un sueño largamente esperado…”
Harpa es el hogar de la Orquesta Sinfónica y de la Ópera de Islandia, atrayendo a un público relacionado con la cultura, la arquitectura y el arte, además de proporcionar un excelente lugar para la mezcla de negocios a nivel internacional y eventos comerciales, con una capacidad única para acoger tanto grandes actuaciones como otras más íntimas o banquetes.
También ha sido galardonado con el “Civic Trust Awards” y el “Best Performance Space 2012”.
Ubicación
Inaugurado en Agosto del 2011, Harpa está situado en la calle Austurbakki 2 101,de la capital de Islandia, Reykjavik. Forma parte de un plan de desarrollo a gran escala, 100.000m2, para el puerto de la zona oriental de la ciudad, el East Harbour Project, ubicándose en un apartado solitario.
El proyecto de ampliación del puerto comprende también una plaza central, una calle comercial, un hotel, edificios de viviendas, instituciones educativas y para la industria mixta. El objetivo general es generar vida en la zona y crear una mejor conexión entre el centro de la ciudad y del puerto.
“…Harpa mira hacia el centro de Reykjavik, y una de las principales ambiciones arquitectónicas ha sido acoplar el hall de entrada con el espacio urbano, y de este modo permitir a la ciudad y al edificio enriquecerse mutuamente, dice Peer Teglgaard Jeppesen de Henning Larsen Architects. En las noches oscuras de invierno, el público asistente al concierto tiene una vista de la ciudad iluminada, creando al mismo tiempo una atracción visual en el puerto. Visto desde la ciudad, por la noche, Harpa destaca como un juego dinámico de luz y sombra…”
Situado en la frontera entre la tierra y el mar, la sala de conciertos destaca como una gran escultura radiante que refleja tanto el cielo como el puerto, así como la animada vida de la ciudad.
Concepto

Harpa es un proyecto en el que se aúnan arquitectura y arte, dando como resultado un edificio único, resumiendo la estrecha colaboración entre el artista Olafur Eliasson y Henning Larsen Architects.
La naturaleza es la principal fuente de inspiración de Henning Larsen Architects para el diseño del edificio. Así, cuatro salas se sitúan una al lado de otra, en volúmenes cerrados cuyas formas recuerdan las montañas volcánicas del entorno.
Visto desde el vestíbulo, los pasillos conducen a un macizo central con la sala de conciertos principal, rojo brillante , en su centro. Este macizo interior contrasta con las fachadas expresivas y abierta, generando un diálogo que define el espacio público de Harpa que continúa en la plaza frente al edificio. Los alrededores están incorporados a la concepción arquitectónica. Como Harpa comienza mucho antes de que los visitantes pasen el vestíbulo, las actividades de esta institución cultural se combinan con la vida de la ciudad.
Diseño
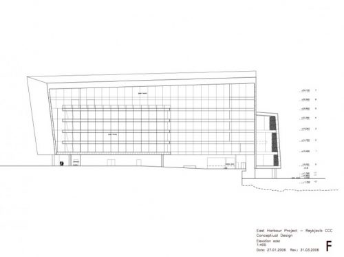
Fachadas
Las fachadas espectaculares, diseñadas en base a principios geométricos, en las que la luz y la transparencia son elementos fundamentales, han sido diseñadas por el artista danés-islandés Olafur Eliassonen en estrecha colaboración con Henning Larsen Architects y la ingeniería de las empresas Rambøll y ArtEngineering GmbH de Alemania.
Como el resto de la construcción, el diseño de las fachadas se inspira en la naturaleza. En particular, las características de las formaciones de basalto locales han servido de inspiración para la geométrica estructura de la fachada.
Espacios
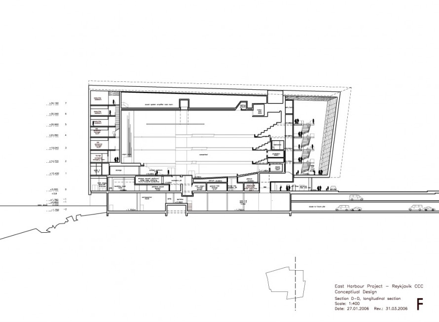
Los 28.000 m2 del auditorio cuentan con cuatro salas principales aptas para conciertos y conferencias.
En el frente del edificio se abre el hall de entrada con dos niveles, siguen cuatro salas en el centro y una zona de bastidores, con oficinas, administración, sala de ensayos y vestuarios en la parte trasera del edificio
Vistas desde el vestíbulo y los pasillos las salas forman un macizo, similar a la roca basáltica de las montañas de la costa, creando un fuerte contraste frente a la fachada expresiva y abierta.
Salas


Las salas grandes se ubican una al lado de la otra con el acceso del público por el lado sur y los accesos a los bastidores desde el norte. En el centro de los volúmenes cerrados, la sala más grande del edificio, la sala de conciertos principal, despliega su interior como un centro brillante de fuerza.
La cuarta planta es una sala multifuncional con capacidad para espectáculos de carácter más íntimo y banquetes.
Capacidad
La sala principal, Eldborg, tiene capacidad para 1600-1800 personas
La sala Silfurberg para 750 personas
La sala Norðurljós para 450 personas
La sala Kaldalón para 195 personas
Otras instalaciones
A lo largo del proceso de diseño, se ha puesto énfasis en dar a Harpa la suficiente versatilidad para albergar grandes eventos e íntimos al mismo tiempo, sin interferencias entre sí. Las instalaciones de Harpa, que ofrecen algunos de los equipos disponibles tecnológicamente más avanzados, abarcan una gran cantidad de posibilidades, desde grandes convenciones, conciertos y exposiciones hasta banquetes y reuniones más pequeñas.
Con diseño acústico y planificación de las instalaciones técnicas proporcionada por el prestigioso Artec Consultants Inc., diseñadores de numerosos y conocidos espacios dedicados a diferentes tipos de música, Harpa es el hogar de la Orquesta Sinfónica de Islandia y de la Ópera del país
Un amplio hall de entrada se encuentra en el primer y segundo nivel y es el espacio ideal para exposiciones, grandes banquetes y recepciones. Hay dos salas de reuniones en el primer nivel, así como varias salas más pequeñas. Entre los servicios adicionales se incluyen tiendas, un balcón mirador, un bar y un restaurante con vistas directas al otro lado del puerto en el primer nivel. En la planta subterránea se ubica otro restaurante, catering, y zona de estacionamiento.
Montaje estructural

Según Peer Teglgaard Jeppesen, arquitecto director de Henning Larsen Architects, existe un diálogo entre el edificio y el visitante, similar a la interacción entre el arte y el espectador: “…el edifico en sí mismo plantea una cuestión, ¿qué es arte y que es arquitectura?…”, dónde comienza o termina cada una de ellas en este bello proyecto.
Las diferentes fachadas se componen de distintas variaciones del cuasi-ladrillo. La fachada sur cuenta con 823 unidades cuasi-ladrillo de 12 lados elaborados individualmente, cada uno «lo suficientemente grande como para que quepa dentro un ser humano», dice el ingeniero Eliasson, mientras que el resto de las fachadas y el techo son las variantes de dos dimensiones fraccionadas de este sistema geométrico de 12 lados, dando como resultado fachadas planas de cinco caras y armaduras poligonales de seis caras.
Para trabajar la fabricación y montaje de los cuasi-ladrillos, el equipo de Eliasson, que incluía ingenieros estructurales, trabajó con modelos 3D de ordenador, modelización de elementos finitos, diversas técnicas de visualización digitales, así como maquetas y modelos. Para solucionar el problema adicional de cómo los lados norte y este de la fachada se reunirían, lados que a pesar de salir de un concepto similar no tienen relación estructural, el equipo dibujó cada esquina a mano y diseñó cada articulación para alojar un ajuste único. El resultado «es como estar dentro de un cristal», dice Sigurður Ragnarsson, ingeniero jefe de Harpa.
Los estudios que se llevaron a cabo por el equipo en el movimiento del sol y la luz de Reykjavik también influyeron en la distribución espacial de la construcción dentro de la piel. La fachada sur está orientada hacia la ciudad, y los diferentes tipos de vidrio transparente, reflexivo, y de color empleados en los cuasi-ladrillos crean una superficie que refleja las nubes y el cielo, de tal manera que la situación climática se convierte en obra de arte. En el interior del vestíbulo, que se extiende por la orilla sur del edificio, filtrado a través de la fachada, la luz del sol arroja luz y color en los pisos, balcones, y en el techo de acero pulido.
La vitalidad del vidrio se contrapone a los monolíticos volúmenes interiores de las cuatro salas, cuyas paredes perimetrales son de hormigón negro pigmentado. El interior de la sala de conciertos principal, un auditorio de 1.800 asientos que alberga la Ópera de Islandia y la Orquesta Sinfónica de Islandia, es de color rojo, haciendose eco del paisaje volcánico.
Puertas de cristal en colores vivos interrumpen las serenas superficies negras y abren las salas de reuniones, salas de conferencias y de ensayo, y un área de exposición, donde los visitantes pueden circular libremente.
Materiales
Fachadas
Realizadas en acero y cristal con un sistema modular geométrico de doce caras rellenado con un sistema “cuasi-brick”, el edificio parece un juego caleidoscópico de colores.
La fachada sur, que se eleva hasta 33 metros, se compone de más de 1.000 apilables de aproximadamente 2,2 metros de alto, a los que Olafur Eliasson llama «cuasi ladrillos”, llenando el espacio ocupado por doce módulos de vidrio y acero. Las fachadas restantes y el techo se hacen de representaciones seccionales de estas estructuras tridimensionales y geométricas, dando como resultado fachadas planas bidimensionales con marcos estructurales de cinco y seis caras.
Quasi bricks

Hay 10 tipos diferentes de vidrio utilizados en las cuatro fachadas del edificio, incluyendo tres cristales dicroicos coloreados de color amarillo, verde y naranja, que a su vez reflejan los colores azul, rojo y morado. Se utilizó vidrio transparente, vidrio antirreflectante, y cinco tipos diferentes de vidrio reflectante, cada uno elegido por su tono de color diferente o grado de reflectividad. Los diferentes tipos de cristales se disponen en grupos para enfatizar tanto los aspectos repetitivos y modulares de la fachada y también los de su solidez, profundidad y transparencia.
Silicona
El uso de un sellador estructural de acristalamiento a base de silicona, ha permitido crear el espectacular muro cortina de vidrio, ajustando sus uniones y otorgando resistencia y hermetismo.
La silicona fue el material escogido para la unión secundaria de las unidades de vidrios aislantes, por sus excelentes resultados tecnológicos, tanto en durabilidad y mantenimiento, principalmente bajo las exposiciones a los rayos UV o a condiciones climáticas extremas.
El diseño de la unidad de vidrio aislante incluye un marco de aluminio con un canal en U para ser embebido con el sellador en sus bordes secundarios, instalados con el propósito de unir los paneles de vidrio al muro cortina a través de un sistema de clips. Fue esta característica relacionada con la retención a largo plazo del gas argón, debido a una potencial pérdida de seguridad en el sellante secundario, lo que llevo a su utilización.
En segundo lugar, los especiales elementos del diseño arquitectónico exigieron que las unidades del muro cortina y del vidrio aislante se fabricaran en China, por lo que la necesidad de recibir asistencia técnica “in situ”, durante el proceso de fabricación fue otro de los requisitos obligatorios.
Led
Los “quasi bricks” de las fachadas sur contienen luces LED en diferentes colores que hacen que Harpa resplandezca aún después de haberse puesto el sol. El brillo y el color de cada módulo se pueden controlar y ajustar según sea necesario.
Hay más de 700 hileras de LED integradas en la fachada del edificio, cada una de aproximadamente 1,5 metros de largo. Cada aparato se incorpora en una extrusión de aluminio delgado, diseñado específicamente para que coincida con la geometría específica de su cuasi-ladrillo y montado en el perfil vertical posterior de la estructura de acero. Esta ubicación evita abrumar a la gente en el interior del hall de entrada con un exceso de luz, al tiempo que ofrece la mejor distribución de la luz indirecta y difusa. Los accesorios de óptica se componen de una serie de filtros, difusores y lentes, y se han desarrollado para el proyecto.
Proyectores
Hay dos tipos de proyectores utilizados en la plaza, Zoom para iluminar caminos y Gobo para crear estados de ánimo, con imágenes de sombras de la naturaleza, imágenes de árboles en el pavimento y de las olas sobre las rocas. Al cambiar las imágenes o el uso de filtros de color, Harpa puede cambiar el estado de ánimo en función de las temporadas o eventos.
Luz
Dependiendo del clima y la hora del día, el juego de reflejos y la transparencia de las fachadas hacen explícita la influencia de la luz natural en la percepción del edificio por parte de los arquitectos.
Para desarrollar estas ideas el equipo trabajó con modelos tridimensionales de ordenador, modelización de elementos finitos, varias técnicas de visualización digitales, así como maquetas y modelos.
Una de las ideas principales ha sido la de «desmaterializar» el edificio como una entidad estática y dejar que responden a los colores que lo rodean, las luces de la ciudad, el océano y el resplandor del cielo. De esta manera, la expresión de la fachada cambia de acuerdo con el ángulo visual o los colores variantes del paisaje.
Video






































