Lonja de Fisterra
Introducción
Urbanización y Nueva Lonja de Fisterra
Se trata de actuaciones en el frente marítimo de la villa de Finisterra, en una zona de dominio público marítimo terrestre en la que confluyen la actividad portuaria y las principales actividades turísticas y de esparcimiento.
Gran parte del ámbito de intervención se encontraba ocupado indiscriminadamente por coches, construcciones auxiliares de bares y restaurantes, interferidos a la vez por la actividad y presencia de una nave de armadores situada entre la fachada y el mar. Nula legibilidad de un espacio sin vistas, lugares de estancia pública, ni claridad en sus recorridos.
Se hacía imprescindible ordenar el tráfico rodado, el aparcamiento y la relación peatonal que tradicionalmente se producía entre el pueblo y el puerto.
Ante la imposibilidad de intervención directa sobre la fachada marítima, se optó por utilizar un elemento único que diese orden a las plantas bajas. Una larga caja abierta por el frente que permite un uso racional de las terrazas.
Ubicación

La nueva Lonja se encuentra en el puerto de la villa de Finisterra, Galicia, España. Fisterra en lengua gallega, cuyo nombre procede del latín “finis terrae”, fin de la tierra y también punto final del Camino de Santiago, en el extremo noroeste de la península Ibérica.
La relación con la villa se produce longitudinalmente, mediante un paseo litoral, y transversalmente, reutilizando y dando continuidad a las escaleras y rampas que vienen de la parte alta del pueblo, prolongándose por la plaza como lenguas de piedra.
Concepto
En la zona portuaria, se propuso agrupar actividades: armadores, subasta, oficinas Cofradía y Portos en un nuevo edificio, ocupando parte de las construcciones existentes. Desde un principio se maneja la idea de un contenedor ligero posado en el muelle, como un embalaje o una embarcación más.
El espacio de subasta plantea, como experiencia pionera en Galicia, la posibilidad de recibir visitantes al mismo tiempo que se realiza la actividad de lonja. Separar su recorrido de los trabajadores se convierte en un objetivo que condiciona la distribución y el programa básico de una lonja convencional, apareciendo funciones añadidas, como la información, exposición de material didáctico o la de control y tienda.
Descripción
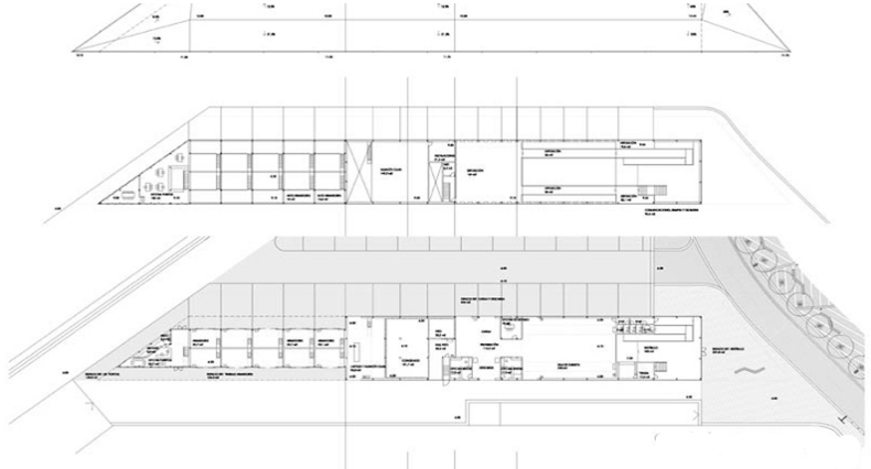
La implantación en el sitio, entre las alineaciones en ángulo de un paseo y un muelle, se resuelve aceptando su propia geometría. Así el edificio tiene muy claros su inicio y final en pico, manifestado principalmente por dos aleros de cubierta. El primero, con un vuelo máximo de 17 metros, está presente en la plaza y es el que acoge a los visitantes.
El del final, que remonta la cota del espigón, es el de la oficina de puertos, espacio administrativo y de control portuario. Entre ambos, las oficinas de la cofradía y los nuevos departamentos de armadores, cuya planta baja se retranquea del perímetro para dejar espacios de trabajo a cubierto.
Al lado de una rampa de piedra, entre embarcaciones varadas, la presencia del edificio en el muelle se va estrechando hasta desaparecer en un quiebro.
Espacios
Esquemas de funcionamiento
Básicamente se plantean dos esquemas de funcionamiento muy simples que no se tocan: uno elevado para visitantes (anillo), con inicio y final en el vestíbulo, y el otro definido por la secuencia lineal a nivel de suelo de los trabajos, con accesos transversales de carga y descarga (espina).
Todo el edificio está modulado con un despiece trapezoidal de un panel de base 1.5 metros de ancho.
La sustitución de piezas opacas por vidrios, tanto en planta baja como alta, define los accesos y entradas de luz, como a través de una malla. El suelo exterior, independientemente del uso que tenga, se prolonga en el interior sin discontinuidad, creando en el vestíbulo principal un espacio diferenciado de observación mediante su plegado en rampa.

Las pasarelas que cruzan el recinto de exposición y venta del pescado protegen sus laterales con pantallas de vidrio inclinadas que funcionan como barreras higiénicas y sirven de soporte al material expositivo.
Las dos se unen en una sala de exposiciones en la que se documentará información complementaria.
De esta manera se permite un recorrido en el que se combinan la observación de la actividad de lonja, sin interferirla, y la de documentación e información complementaria.
A continuación, integrados en el mismo volumen, se reubican los diez departamentos de armadores de la lonja antigua y, en el extremo final, la oficina de Portos, controlando la actividad portuaria.
Superficie construida
La Lonja que da cabida a los armadores y puertos abarca una superficie construida de 1.880 m2
Espacios a cubierto 778 m2

Superficies urbanización:
Pavimentos de piedra 11.000 m2
Otros 3.545 m2
Zonas verdes 734 m2 , árboles 56 unidades
Aparcamiento 203 coches
Viales 9.566 m2 (6.021 pu + 3.545 po)
Plaza y aceras 4.979 m2, de los cuales 2.584m2 corresponden a la plaza
Espacios cubiertos plaza 800 m2
Cubiertos armadores (edif.exist.)745 m2
Plaza
El derribo de la nave de departamentos de la antigua lonja permitió crear una gran plaza en torno a la cual situar los nuevos elementos
Parking
El aparcamiento tiene capacidad para 203 vehículos, de las cuales 181 son públicas y 22 para los armadores.
Materiales
Estructura de cubierta malla espacial, resto mixta metálica y muros de hormigón. Los acabados de cubierta y falsos techos son de chapa de aluminio.
Las fachadas se han recubierto con panel composite aluminio con carpintería exterior de aluminio anodizado.
Pavimentos de hormigón pulido, resinas y granito Cañiza en exterior. Los pavimentos de piedra cubren una superficie de 11.000 metros cuadrados.
Acero esmaltado e inoxidable en su estructura.


























