Museo Archivo Bauhaus
Introducción
El edificio es una obra tardía del arquitecto fundador del movimiento de la Bauhaus, Walter Gropius, que le fue encargada expresamente para acoger el archivo permanente del mismo, años después de su disolución.
En un primer momento las fuerzas políticas de la ciudad donde se iba a construir se opusieron frontalmente a la construcción del edificio diseñado por Gropius y no fue sino después de muchas visitas a las instituciones públicas de Berlín y de pedir muchos permisos que el proyecto fue aceptado.
La iniciativa se demoró bastante tiempo aunque la mayor parte se consumió en trámites burocráticos. Una vez comenzadas las obras se siguieron los plazos previstos sin tener que detener los trabajos en ningún momento gracias a la inyección constante de fondos privados.
A día de hoy el archivo de la Bauhaus se ha convertido en un símbolo indiscutible de la ciudad de Berlín no sólo por la historia que en él hay contenida sino también por la peculiaridad del edificio que la contiene y sus inconfundibles claraboyas.
Situación
El Archivo de la Bauhaus se encuentra en una zona aún en desarrollo dentro de la estructura urbana, aunque hay numerosos edificios de interés en los alrededores, como el archivo von der Heydt o el monumental Grand Hotel Esplanade, en la orilla opuesta.
Su ubicación exacta es: Klingelhöferstraße 14, Tiergarten, Berlín, Alemania
Concepto
Walter Gropius soñó con el proyecto de un archivo permanente para la Bauhaus muchos años antes de que se le encargara este proyecto.
Gropius sólo podía imaginarse dicho archivo como una entidad independiente sin relación alguna con ningún otro museo debido al carácter innovador de la escuela que fundó. El creía que el proyecto quedaría “capado” por la incomprensión de las personas ajenas a la escuela si el archivo se formalizaba como un departamento más de otra institución más conservadora.
Años antes de que el archivo fuera siquiera un sueño Gropius diseño su edificio ideal para acoger semejante institución. Dicho proyecto sirvió como base para el edificio definitivo aunque sufrió importantes cambios debido a las diferencias del terreno derivadas de su traslado de localidad.
Proyectos
1964
El proyecto original creado por Gropius fue para la vertiente norte de la Rosenhöhe, en Darmstads y contaba con el apoyo incondicional de Hans Wingler, director fundador del Bauhaus Archive.
El lugar escogido estaba en pleno crecimiento y desarrollo y los funcionarios de la ciudad consideraron que era una posición demasiado destacada para la construcción de un instituto nuevo y con un perfil aún no definido, mostrando su disconformidad.
El diseño del complejo presentaba una pequeña formación en H, adaptándose a la pendiente del terreno y el espacio de exposición iba a estar iluminado a través de domos en el techo.
1971
Después de atraer el interés del senador Rolf Shcwedler, en 1971 el archivo se trasladó a Berlín, con la promesa del Senado de respetar el proyecto de Gropius. El Arquitecto pudo escoger entre tres terrenos disponibles, decantándose por el que estaba próximo al Landwehrkanal que en contraste con Dramstadt, era completamente plano.
Las modificaciones necesarias del proyecto original para poder adaptarse a su nueva ubicación, fueron desarrolladas por Alex Cvijanovic, como la rampa que atraviesa el complejo, en colaboración con el arquitecto berlinés Hans Bandel, y el proceso de adaptación presentó muchas dificultades y llevó mucho tiempo, hasta que en 1976 se colocó la piedra angular para un edificio muy cercano al de 1964, tanto en planes generales como en silueta.
Debido a la estructura simple, la construcción avanzó rápidamente y fue inaugurado en 1979.
Espacios
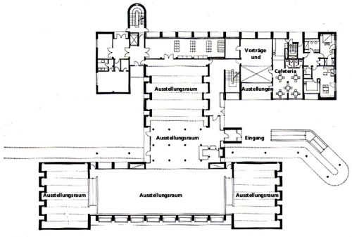
En la parte norte se ubican las secciones administrativas y salas de trabajo y en la sección sur las salas de exhibiciones.
Salas exhibiciones
Se dispone de 800 metros cuadrados para exposiciones permanentes y 400 para temporales. Los nuevos espacios expositivos son prácticamente subterráneos. El complejo también dispone de una tienda, un café y espacios de apoyo.
La estructura del techo del café tiene forma de concha y es uno de los pocos espacios a nivel de suelo, abriéndose hacia la plaza existente frente del museo.
Estructura
El complejo consta de dos estructuras de dos pisos cada una que resultan casi iguales y paralelas entre sí, unidas por una sección intermedia y comunicados entre sí por pasillos que algunas veces desaparecen bajo la estructura del edificio y otras emerger permitiendo ver el paisaje.
Los elementos característicos de ambas estructuras son las filas de 4×4 metros de altura de las campanas del techo, alineadas estrictamente hacia la cara norte, para una mejor iluminación.
La fachada montada sobre un marco de concreto reforzado, está dividida en secciones individuales remarcadas por juntas oscuras entre los paneles de hormigón pintados de color blanco.
Materiales
El ideal de la forma, seguida de la función destacó en este proyecto, en el que se hizo especial hincapié en la utilización directa y honesta de los materiales como forma funcional para el diseño.
El resultado fueron las formas arquitectónicas rectilíneas, cuyos componentes estructurales como el acero, vidrio y hormigón se utilizaron de manera directa y honesta, sin tratar de imitar ninguna otra forma.
Las coloridas columnas de metal ubicadas en ambos extremos de la rampa son obra de Max Bill.
























