Torre Cube
Introducción
El edificio de oficinas “Torre Cube”, de la arquitecta catalana Carme Pinós se ha convertido en el foco de las miradas en Guadalajara (México).
Esta torre tiene 70m de altura y está construida en una zona de muy alta intensidad sísmica.
La oportunidad y la singularidad del proyecto de la Torre Cube, surgido tras un encargo privado, han permitido la respuesta arquitectónica que busca un lenguaje depurado al servicio de una idea potente y audaz. La Torre Cube juega con la gravedad, con el equilibrio de sus partes, que se confía a un sistema racional de piezas de hormigón.
El juego estructural tiene su inmediata respuesta perceptiva siguiendo las leyes precisas que repercuten en el gesto y las formas.
Las variables medioambientales son argumentos que han ayudado a definir la materialidad del edificio, volcando sus espacios de oficinas a un patio ventilado que permite la succión suave del aire y no requiere instalaciones que lo traten.
Situación
Ubicado en el barrio de alto standing Puerta de Hierro, en Guadalajara capital del estado de Jalisco, México.
Concepto
Opositora de las oficinas que obligan a los empleados a trabajar encerrados entre cuatro paredes, Pinós planteó una arquitectura pensada no sólo en términos de belleza escultórica, sino sobre todo diseñada para ofrecer una mejor experiencia para los usuarios.
El proyecto nace de la voluntad de crear oficinas ventiladas e iluminadas todas ellas con luz natural, y en las que dado el buen clima de la ciudad de Guadalajara el aire acondicionado no fuese necesario.
Espacios
La volumetría fragmentada -que crea terrazas elevadas convertidas en ventanas urbanas del espacio central- y el gran pórtico -que abre el edificio hacia el paisaje- consiguen una arquitectura que pierde autismo.
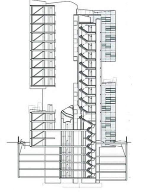
El edificio consta de 20 niveles totales, cuatro de los cuales son usados como estacionamientos (niveles –12.90 a –4.35 m) y el resto tiene uso de oficinas (niveles –1.50 a +48.05).
El centro del edificio, es decir, el espacio entre los tres núcleos de circulación vertical, es un espacio abierto que se ilumina lateralmente suprimiendo alternativamente tres plantas de los módulos de oficinas y que, a la vez que se convierten en ventanas del espacio central, permite circular el aire dando la posibilidad de suprimir el aire acondicionado.
Estos «núcleos» funcionan como la estructura principal del edificio, y cada uno de ellos tiene todos los elementos de servicios, hay un ascensor en cada uno de ellos, una escalera y lavabos públicos.
Estructura
Se ha recurrido a una estructura mixta de hormigón reforzado, hormigón postensado y acero estructural calculada y diseñada por el despacho de Luis M. Bozzo, Msc., PhD.
El edificio se desarrolló a partir de tres núcleos de hormigón los cuales son la única estructura de sujeción de todo el edificio. De ellos salen grandes volados de hasta 10 m con losas de hasta 22 m. que se plantearon mediante el empleo masivo de losas postensadas e innovadoras vigas pared metálicas. Estos tres núcleos contienen todas las instalaciones y circulaciones verticales.
Núcleos
Los núcleos son la única estructura del edificio desde donde salen en voladizo las vigas principales en las cuales se apoyan las losas postensadas de los pisos, estos núcleos son pilares, única estructura de sujeción de todo el edificio.
De ellos salen en voladizo unas grandes jácenas de canto variable según el número de plantas. Los forjados postensados se sujetan a estas jácenas sin ayuda de ningún pilar. Esto nos permite desarrollar un parking muy libre y ofrecer módulos de oficina sin ningún obstáculo.
Niveles
En los niveles de estacionamientos (sótanos) la estructura abarca la totalidad del terreno (50x60m), mientras que, a partir del primer nivel de oficinas, el edificio es concebido como tres módulos de oficinas diferentes ligados dos a dos mediante tres núcleos de servicios que contienen las circulaciones verticales, considerando esta la forma estructural óptima para mantener la estética planteada
Transmisión de cargas
En primer término se debe indicar que el costo final de un edificio está condicionado por diversos factores, entre los que destaca el esquema de transmisión de cargas adoptado, junto con sus luces y materiales. En general, un edificio será más económico mientras más claros y definidos sean sus mecanismos de transmisión de cargas. Esto se debe a que el modelo de cálculo en dicho supuesto será más preciso y efectivo repercutiendo en una optimización de secciones y miembros. Por otra parte la elección correcta del material y tipología influyen en el costo final. Función y forma deben ir ligadas entre sí en la medida de lo posible.
El esquema de transmisión de cargas es simple y claro: cada forjado se apoya en las estructuras metálicas laterales en voladizo, las cuales se apoyan en las pantallas curvas que transmiten su carga a la cimentación.
Voladizos
Tal como indica Luis Bozzo (www.luisbozzo.com) los grandes volados de hasta 10m con forjados de hasta 22m, con luces medias de 16m, se plantearon mediante el empleo masivo de forjados postensados e innovadoras vigas pared metálicas que permiten plantas diáfanas y relaciones luz canto de sólo L/55 con cuantías promedio de acero para pretensado de sólo 3,3kg/m² y de acero corrugado de sólo 10kg/m².
Se han proyectado los volados de manera tal que se compensen unos con otros. Es decir las áreas y centro de gravedad de las mismas se han proyectado para minimizar el momento de vuelco, compensándose los bloques entre sí. De esta forma no se presentarán reacciones de tracción en la base de las pantallas. Esta es una consideración importante para el diseño de la cimentación dado que es complicado y costoso anclar a tracción las mismas, además del fuerte condicionante sísmico del emplazamiento.
Materiales
Hormigón blanco y madera son algunos de los materiales, que acompañan al hormigón convencional, al acero, al cristal y al aluminio.
Vigas
El acero se utiliza en las vigas pared para disminuir significativamente su propio peso en comparación a una viga pared convencional y permitir el paso de luz natural. Por otra parte facilita el proceso constructivo pues algunos módulo empiezan en cotas altas y es costoso el mantenerlos apuntalados.
Con las vigas de pared metálicas y el postensado se ejecutan y desapuntalan módulos en menos de 7 días.
Fachadas
La fachada exterior se compone de un cuerpo de celosías de madera con puertas correderas que hacen de parasoles y la interior de ventanas operables con marcos de acero.
Esta «doble piel» proporciona suficiente ventilación natural al edificio que rara vez necesita el uso de aire acondicionado (recordar, es en Guadalajara).
Iluminación
La buena iluminación natural es proporcionada por la apertura del espacio que da al ‘atrio’, gracias a los tres pisos, los grandes porches y las terrazas.















































