Casa Iwata
Introducción
La residencia construida por Pierre Koenig para el matrimonio de Richard y Vicky Iwata y sus cinco hijos parece, a primera vista, diferir de las transparentes construcciones de acero que en la década de los 60 se habían convertido en el sello distintivo del arquitecto. Este desdoblamiento parece demostrar que Koenig no se sentía atado a ningún estilo determinado, sino que desarrollaba diferentes soluciones según las necesidades y gustos de sus clientes.
Situación
La Casa Iwata fue construida al pie de las montañas San Gabriel, en el interior de Monterey Park, Los Ángeles, Estados Unidos. La parcela, ubicada en 912 Summit Place, tiene forma de cuña, se estrecha en la calle de acceso para ensancharse en el extremo opuesto donde marca una abrupta pendiente.
Concepto

Proyecto
La Casa Iwata fue concebida como una serie de formas rectangulares apiladas, cuyas mamparas en las fachadas se abren a las vistas de las montañas.
La marcada pendiente y el tamaño de la parcela hicieron que Koenig se planteara dos opciones: o bien realizar un edificio largo y estrecho, en la franja sin desnivel lindera a la calle o construir sobre la parte ancha y en pendiente del terreno. El arquitecto optó por la última solución, aprovechado la pendiente para desarrollar su proyecto tanto en sección como en planta.
Como era costumbre en el arquitecto, y como hiciera en la Casa Burton o CSH nº22, construyendo sobre columnas evitó modificar el aspecto natural del terreno y el movimiento de tierras, respetando el paisaje natural.
Espacios
Al realizar el edificio apartado de la calle de acceso, sobre la pendiente, la parte plana de la parcela fue utilizada para ubicar la entrada, la piscina y el parking. Se construyeron un total de 1.115 metros cuadrados, incluyendo parkings y zona de piscinas.
Niveles
Acceso
Desde la calle, a través de un camino largo y estrecho que flanquea la piscina se atraviesa la zona de entrada, que se desarrolla de forma secuencial, en cuyos laterales se ubicaron los vestuarios y el garaje, éste separado por una mampara de la zona de aguas. Una vez atravesado el pabellón se llega a un estilizado puente que conduce a la casa y finaliza en las escaleras centrales.
Nivel central

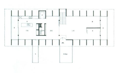
Una vez cruzado el puente de acceso, se llega al nivel medio de la casa donde se despliegan las zonas comunes. En esta planta, de 26×6 metros, se ubican a la derecha de la escalera, el salón, la sala de música y un estudio, a la izquierda el comedor, la cocina y el cuarto de estar. A lo largo de toda la pared exterior, se han añadido mamparas fijas verticales que protegen la casa de la luz solar a la vez que ocultan las vistas transversales del paisaje. En el centro de ambos laterales las escaleras conducen a la planta superior o al nivel más bajo.
Nivel sótano
En este nivel encontramos un amplio salón de juegos para los niños y un taller.
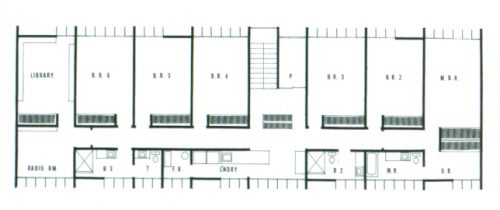
Nivel superior
Este nivel es el de los dormitorios, seis en total. El principal, en uno de los extremos ocupa todo el ancho de la planta al igual que la biblioteca, ubicada en el otro extremo, que tiene anexada una sala de radio. En la planta hay también tres baños, un estudio y una sala de costura.
Funciones
Cada una de las plantas irradia un nivel jerárquico, más flexible en la planta común y con espacios más celulares en la planta alta destinada a los dormitorios. Esta misma sensación se aprecia en el exterior, sobre todo en la repetición de las mamparas, mucho más espaciadas en la planta media y en mayor número en el nivel superior, dando más intimidad a los ambientes y haciendo que sea más reconocible la función de cada planta.
En la planta superior el gran número de mamparas no permite distinguir un dormitorio de otro, aunque ciertos paneles ciegos dejan intuir las distintas funciones.
Estructura y materiales

Las principales vigas estructurales del marco de acero están colocadas en paralelo en la parte longitudinal de la planta. Situadas a 4,30 metros unas de otras, cada viga está sostenida por tres pilares de sección cuadrada de 200×200 milímetros, separados 10.50 metros entres sí.
La planta superior, que necesitaba un mayor voladizo, se apoya en vigas de sección en I de 685 milímetros, la planta intermedia en vigas de sección en I de 530 milímetros y la planta inferior descansa sobre el suelo.
Una estructura secundaria de perfiles en I de 400 milímetros, que conecta las vigas largas y se aprecia en el exterior, sostiene la planta superior, incrementando la sensación de compartimentación que sugiere la estratificación del diseño.
Los espacios que quedan entre las plantas fueron aprovechados para colocar las diferentes instalaciones de servicios a la vez que sirven de separación acústica.
Detalles constructivos
El alzado trasero de la planta superior se divide en ocho vanos iguales, seis para los dormitorios, y los otros para la biblioteca y un patio anexo al hueco de escalera. Toda la planta irradia una organización compacta y casi institucional, que Koenig consideró práctica para una familia tan numerosa.
En un extremo del edificio la biblioteca a la que se anexa la sala de radio y en el otro el dormitorio principal con baño ocupan todo el ancho de la planta. Ambos extremos se unen por un pasillo central desplazado del centro que va dando acceso a las diferentes estancias de la planta, casi idénticas entre si y menos profundas que las de los extremos, enfrentándose a tres baños, la sala de costura y un estudio.
Mamparas
Las mamparas son el detalle característico de la Casa Iwata. Para determinar su ubicación, Koenig realizó el estudio en una maqueta con heliodón que permitía ubicar la posición del sol y su incidencia en cualquier momento del día y del año. Como resultado ubicó las mamparas en mayor número y mucho más juntas en la zona de dormitorios, donde las estancias eran más estrechas, impidiendo la excesiva exposición solar y sugiriendo una relativa privacidad. En la planta baja, con estancias más amplias, están más espaciadas entre sí. De este modo la exposición solar era proporcional a los espacios que calentaba.











