Gordon Wu Hall
Introducción
Tanto en la Casa Guild como en Gordon Wu Hall, Robert Venturi nos presenta una arquitectura que intenta acomodarse a condiciones preexistentes, incluyendo detalles históricos y referencias explícitas, como el patrón heráldico sobre la entrada, las piedras clave, los ventanales estilo Tudor-Gótico o las bolas de piedra sobre pilares en los pasos que definen un conjunto de caminos a través del Campus de Princeton.
El diseño para el nuevo edificio del Butler College recoge señales importantes de lo que está a su alrededor, promoviendo a la vez una identidad propia. Su larga forma y posición central lo convierten en un nexo visual que conecta y une los edificios preexistentes pertenecientes a los dormitorios. El ladrillo, el acabado de piedra caliza y las tiras de ventanas adheridas a la entrada, cuyo ajuste descentrado y lateral en el edificio, está marcado por un audaz panel de granito en blanco y negro, recuerda los principios ornamentales Renacentistas y simboliza la entrada a la universidad en su conjunto, así como al propio edificio.
Situación

El sitio donde se construyó el nuevo edificio es irregular, inclinado y estrecho. Otras limitaciones incluyen la proximidad de los otros edificios y la necesidad de una nueva sala para compartir una ya existente cocina adyacente al Wilson College, en el Campus de la Universidad de Princeton, New Jersey, Estados Unidos.
Paralelo al Wu Hall un paseo peatonal modula las laderas de los ejes norte-sur con una serie de rampas, escalones, muros de contención y pequeños cortes. Las áreas resultantes de esta disposición de los espacios exteriores crea lugares para reuniones y descanso. En el extremo sur del edificio los arquitectos diseñaron una pequeña plaza, en el cruce del College Walk, una de las principales calle peatonales del Campus, y Butler College Walk. Aquí College Walk se amplía para acomodar el acceso a nuevos dormitorios y salvaguardar el Butler Memorial que identifica y une los tres dispares edificios que forman el Butler College. Esta disposición en conjunción con la ubicación del Wu Hall ha dado identidad al extremo occidental de College Walk.
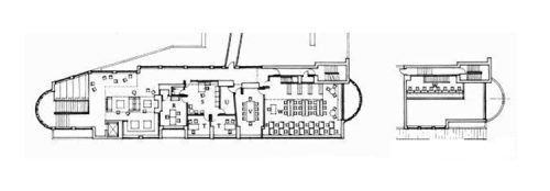
Concepto
Gordon Wu Hall es la pieza central del Butler College, un comedor de ladrillo situado entre los edificios de dormitorios, que a su vez fue diseñado para identificar el College de residentes graduados en la Universidad de Princeton. El proyecto planteó a los arquitectos el diseño de un edificio que proporcionara una nueva identidad a la universidad y que a la vez sirviera como punto focal para toda su vida social otorgando un sentido de cohesión a las instalaciones ya existentes con estilos dispares.
Cuando Venturi diseñó el Gordon Wu Hall lo describió como “un guión visual” que conecta los dormitorios adyacentes ya existentes.
Espacios

El interior del edificio fue planeado no sólo para crear una serie de espacios que den cabida a las actividades sociales y de comedor para 500 estudiantes, sino también para proporcionar oportunidades de relacionarse socialmente de manera informal, íntima y espontánea.
Vestíbulo
En el vestíbulo de entrada, sobre la izquierda, una escalera conduce a través de un gran ventanal, hacia un salón de descanso, a las oficinas administrativas y a la biblioteca en el piso superior. El salón y la biblioteca incluyen cada uno grandes ventanales, ampliando visualmente sus espacios relativamente pequeños.
El primer tramo de escaleras se extiende inesperadamente hacia un lado formando grandes gradas que permiten sentarse. La extensión de la escalera sugiere una “gran escalera” de barrido hacia arriba, aunque sirve como un espacio informal de espera o reunión. En ocasiones especiales se convierte en un anfiteatro.

Comedor
El largo edificio comedor con altos ventanales curvos en dos niveles en cada uno de sus extremos proporciona una sensación de grandeza y recuerda los comedores Góticos de Princeton, aunque los techos bajos, las largas ventanas y los muebles de madera crean una nueva escala de intimidad y confort que permiten que la gran sala se convierta en un lugar agradable, mezcla de un íntimo café y un gran salón comedor.
Fachada
La fachada principal de Wu Hall es una curiosa mezcla de elegancia y desaliño, es delgada y tensa, pero sobresale y se curva para sugerir una expresión de contundencia. Está perforada por bahías horizontales de ventanas a ras con la superficie del edificio, detalle que le otorga elegancia. Las ventanas a su vez están divididas en paneles más pequeños para aparentar antigüedad. Las puertas de entrada son de madera, como en la vieja escuela, pero por encima de ellas un frontón de mármol blanco que ocupa toda la altura del frente expone un patrón de círculos, arcos y triángulos en mármol gris oscuro.
Materiales
La identidad propia, pero a la vez compartida con las instalaciones ya existentes incluye en su construcción paredes de ladrillo ocre, molduras de piedra caliza y bahías de ventanas que se adhieren a la arquitectura gótica tradicional de Princeton. Se han realizado ornamentaciones con mármol blanco, negro y gris.
El edificio está totalmente adaptado para personas con discapacidades.

























