Ingeniero
Inros Lackner AG
Constructora
Construction Machinery Corporation (COMA)
Gerente de obra
Marcus Tanzen, Tuyen Tran Viet
Promotor
Departamento de Cultura e Información de Hanói
Diseñado en
2005
Año de Construcción
2007–2010
Altura
30.7m
Pisos
4
Área del terreno
53.963m²
Área construida
30.000 m²
Ubicación
Hoan Kiem District, Hanói, Vietnam

Introducción

El Museo diseñado por GMP Architekten, ganadores en el Concurso Internacinal convocado en 2005, está rodeado por espejos de agua, monumentos y construcciones tradicionales vietnamitas. Su construcción incorpora algunos detalles constructivos comunes a los museos mezclados con un nuevo giro arquitectónico.
El interior del museo, con sus paredes blancas y la gran rampa en espiral, guarda cierta semejanza con el Museo Guggenheim de Nueva York de Frank Lloyd Wright. Su estructura exterior se asemeja a una pirámide invertida con cuatro niveles cuadrados descendentes.

Situación

El museo fue levantado en medio de un parque artificial en el distrito de Hoan Kiem, Hanói, Vietnam. El museo está al lado del Centro Nacional de Convenciones, inaugurado en 2006.
Hoan Kiem es un distrito urbano y centro comercial de Hanoi, la capital de Vietnam, llamado así por el pintoresco y cercano lago Hoan Kiem, en el que se encuentran la mayoría de las empresas públicas del país y las sedes de los bancos.

Espacios

Planta

Las áreas exteriores que rodean el edificio ofrecen grandes espacios para exposiciones u otros eventos. El edificio de planta cuadrada tiene acceso desde los cuatro lados y su planta baja significativamente menor que el primer piso resalta que los característicos jardines y el agua parecen comenzar debajo del edificio, detalle que se tuvo en cuenta en la planificación de los alrededores.

El edificio con forma de pirámide invertida y planta cuadrada tiene en el interior un atrio central circular que vincula el nivel de entrada con los tres niveles superiores de exposición a través de una rampa. Estas plantas están organizadas en forma de terrazas en voladizo, sobresaliendo cada vez más a medida que se asciende y pensadas para que den sombra a la planta que tienen debajo, concepto correspondiente al apartado de eficiencia energética, a la vez que ayudan a la conservación de las obras expuestas protegiéndolas de la luz directa del sol.

La distribución de las plantas aterrazadas en voladizo crean en el visitante que mira hacia afuera el efecto de estar flotando sobre el paisaje ya que no tiene visión del nivel inferior.

Rampa

 

La rampa es una espiral continua que circunda el gran vacío central permitiendo el acceso a todos los niveles y conectando el museo como un todo. De este modo se convierte en el elemento dominante dentro del museo, ofreciendo al mismo tiempo vistas hacia el vestíbulo y hacia las áreas de exposición.

Plantas

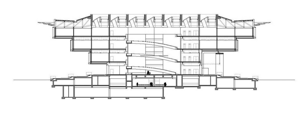
Sección

Las plantas 1, 2 y 3 ofrecen grandes espacios expositivos, siendo utilizadas sólo con ese fin. Todas ellas, incluido el espacio circular del vestíbulo, reciben la luz indirecta del sol a través de unas claraboyas dispuestas en forma de aspas de molino, creando una penumbra acogedora.
La planta 4 alberga salas de conferencias, de investigación, oficinas y biblioteca.

Estructura

 

Las mayores dimensiones en planta son las del último nivel 92,4 x 92,4 m. Estas van disminuyendo a medida que se desciende hasta llegar al cuadrado de 42x42m que forma la planta baja. En cada esquina de la planta baja donde se encuentra el hueco de escalera y ascensores se ha colocado un núcleo con una dimensión entre ejes de 8,4 m x 8,4 m. colocados simétricamente como protección contra seísmos y tornados.

Las plantas están suspendidas de la estructura del techo por medio de elementos de tensión en la red estructural, por lo que la última de 109.2m x 109.2m y 5 m de altura tuvo que ser realizada inmediatamente después de los núcleos. La estructura de la cubierta fue hecha con paneles de pared de hormigón armado y vigas de atado. Los paneles de pared enlazan los cuatro núcleos y mejoran la rigidez global del edificio. Los bordes y las zonas interiores de la estructura del techo se construyeron con entramado de acero para reducir el peso muerto.

Materiales

En su construcción se han utilizado principalmente hormigón armado, acero y cristal.
Los cristales del perímetro son de un tono verde semitransparente y están colocados detrás de paneles ornamentales que crean una fachada transparente y a la vez difusa que cambia dependiendo de la dirección en que se observe. Esta fachada otorga una luz indirecta a los grandes espacios de exposición y le otorgan una suave luminosidad.

Planos

Fotos

Fotos construcción

Otras fotos