Torre Eurosky
Introducción
La Torre Eurosky, el primer rascacielos levantado en Roma sigue siendo en 2015 el edificio más alto de la ciudad y una de las torres residenciales más altas de Italia.
El volumen atravesado por una ranura vertical que parece dividirlo en dos partes destaca por sus dos planos, uno horizontal y otro inclinado, que resaltan en la cubierta, por encima de los niveles técnicos.
Situación
Diseñada por el arquitecto Franco Purini junto a Laura Therme está ubicada en la zona residencial de Torrino, Viale Giorgio Ribotta 21, lindando con el Europarco Business Park, Municipio IX (ex XII) de Roma, Italia.
La Torre es parte de un desarrollo más amplio llamado Europarco Business Park, un proyecto internacional, que combina a la perfección los espacios residenciales, comerciales y de oficinas con plazas cuidadosamente diseñadas y áreas abiertas. Una serie de modernos edificios de oficinas, con diseños vanguardistas, junto con edificios residenciales altamente innovadores y una gran galería comercial (Euroma2) cubren un área total de aproximadamente 63 hectáreas. Todo el proyecto se agrupa en torno a una gran plaza peatonal equivalente a algunas de las plazas más famosas del centro de la ciudad de Roma.
Concepto
El volumen ha sido diseñado como un objeto arquitectónico sencillo, inspirado en las torres medievales repartidas por todo el centro de Roma, como la Torre de las Milicias.
La Torre Eurosky, junto con la otra torre desarrollada dentro del Europarco Business Park, Torre Europarco, está llamada a convertirse en una puerta de entrada ideal para el contexto urbano, un objeto arquitectónico bien definido destinado a convertirse en una nueva adición a los icónicos edificios que conforman el paisaje de la capital italiana.
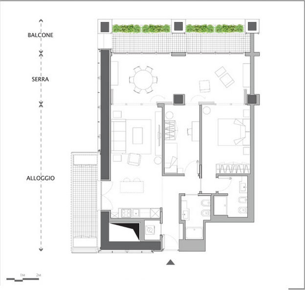
Espacios
Con su arquitectura atemporal la Torre ofrece oficinas en sus 3 primeras plantas y unidades residenciales hasta la 27, con una exclusiva serie de servicios compartidos.
El rascacielos tiene un total de 120 metros de altura, 135 con el gran panel fotovoltaico en plano oblicuo, distribuidos en 27 pisos habitables y 6 pisos «técnicos».
El rascacielos de hormigón está revestido con granito laminado y se puede medir por las aberturas regulares de los balcones. La Torre Eurosky está compuesta por dos prismas verticales, cada uno con dos bloques de escaleras y ascensores y unidos por puentes que acomodan en su parte interna las instalaciones técnicas.
Las seis últimas plantas unifican los dos prismas que son coronados con esta gran estructura que soporta dos grandes placas de paneles solares, cada una en un extremo de la cubierta. La que se enfrenta a la otra torre del complejo se proyecta sobre el vacío y en el extremo opuesto un gran plano inclinado ofrece el segundo panel. La cubierta es parte de un pilón de 35m que forma parte de la fachada y se convierte en el único elemento que rompe la perfecta composición cartesiana del edificio.

Vestíbulo
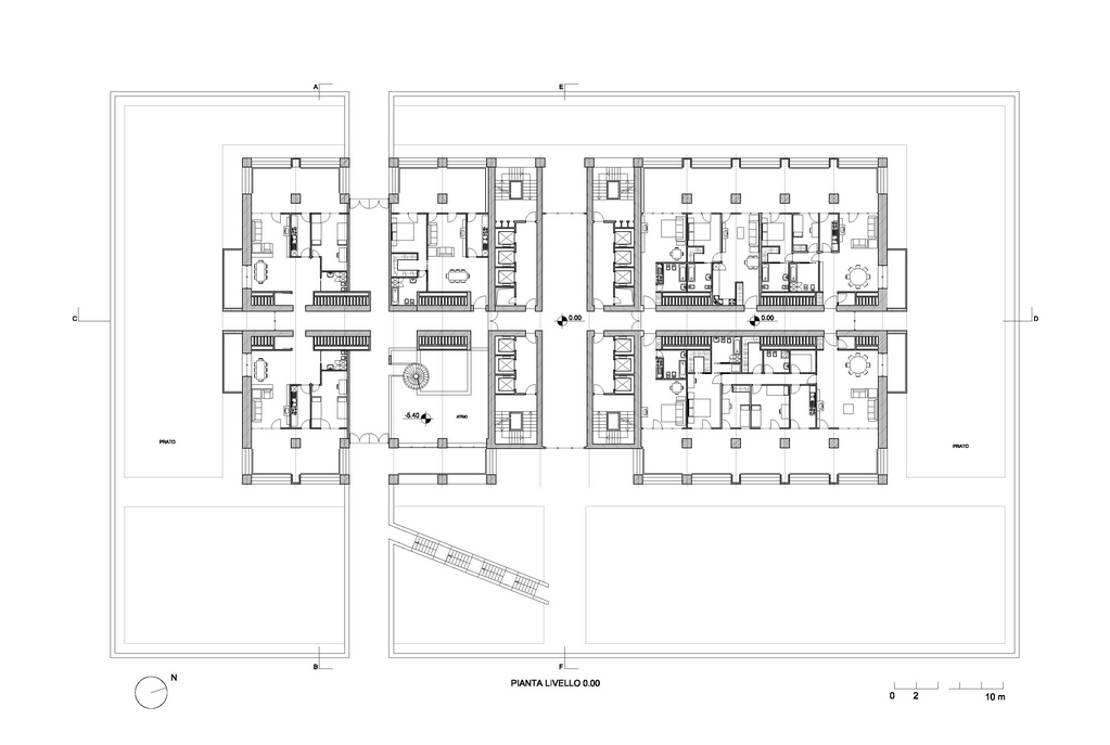
La torre dispone de dos accesos: una pasarela que conecta con el nivel del jardín y una entrada privada al jardín que está en la cota -5.40m.
Con una altura libre de 4 plantas, el gran vestíbulo de la torre ofrece un acceso independiente desde la plaza pública y otro desde la plaza privada desarrollada alrededor de todo el perímetro de la torre. Este espacio está enriquecido con una gran zona de agua y con una escultural escalera circular. También dispone de un espacio para el conserje y para el portero.
Sala Común – Lavandería
En la planta principal, de acceso a los residentes, se ubica la lavandería y un salón para reuniones diurnas.
Spa – gimnasio
Con su posición panorámica en las plantas 22 y 23 la zona de spa – gimnasio, el más alto de Italia, ofrece exclusivos servicios a los residentes. Gracias a una fachada totalmente acristalada es posible disfrutar de una excepcional vista y trabajar con las más modernas máquinas Technogym. La zona de spa, está provista de sauna y baño de vapor, un templo de bienestar, innovador, elegante y, además, reservado y exclusivo.
Cine privado y salón
Situados en la planta 24, estos dos servicios adicionales están destinados a convertirse en un punto de encuentro exclusivo para los residentes de Eurosky Torre y sus invitados. La sala de proyección, está equipada con una gran pantalla de proyección y confortables asientos. El salón adyacente, con una barra de bar y una zona de estar ofrece una larga terraza con vistas panorámicas.
Terraza

Situada en la planta superior del edificio, este gran espacio abierto está diseñado como un parque privado y exclusivo, una zona verde con paisaje moderno bajo la protección de las paredes que definen el borde superior de la torre. Desde esta zona se puede acceder a otra amplia terraza un poco más elevada.
Estructura
Uno de los objetivos de los inversores era reducir el tiempo de construcción recurriendo a la industrialización del mismo. La eficiencia se logra mediante la repetición “X” cantidad de veces de las operaciones estándar, con el máximo rigor y seguridad. Se trabajó en la investigación de soluciones ejecutivas y técnicas respetando las rigurosas normas en vigor para las construcciones de altura, entre ellas la reducción de vigas que limitaran el impacto global en las dimensiones de las diferentes secciones, incluyendo un chequeo de movimiento, la actualización de las ranuras en los perfiles de acero donde se insertan las vigas y el uso de dispositivos suplementarios resistentes una vez cortados.
Soluciones estructurales
La estructura portante se compone de vigas y pilares de acero y deflectores de hormigón armado, mientras que los pisos son de chapa ondulada y acabado de fundición en hormigón.
Este sistema estructural autoportante compuesto permite una alta exposición de los materiales, mientras que la longitud total de la estructura de soporte ha ofrecido una contribución determinante en relación a la resistencia ante un estrés sísmico. Fueron utilizados 10.000 metros de material compuesto de acero y hormigón.
Las estructuras verticales se componen de secciones de hormigón armado de 50cm de espesor, con mayor refuerzo en los núcleos de escaleras y ascensores.
Vigas de acero y hormigón con base de concreto se utilizaron para realizar las estructuras horizontales perimetrales, mientras que vigas de acero y hormigón compuesto con placa de acero fueron utilizadas en el interior.
Materiales
En la construcción de la estructura del edificio se utilizaron vigas compuestas de acero-hormigón con placa de acero, vigas compuestas de acero-hormigón con base de hormigón y columnas PDTI®
Innovación tecnológica


La Torre es una verdadera máquina de ingeniería alimentada con recursos renovables. Ha recibido el Premio Real Estate otorgado a los Smart Green Building, como prueba de su enfoque innovador que vincula el uso de recursos renovables directamente con el diseño arquitectónico. Todo el proyecto es sostenible: cada detalle, desde los paneles fotovoltaicos hasta el sistema neumático selectivo para la eliminación de residuos o el sistema de “trigeneración” para la reutilización del agua de lluvia, han sido diseñados con el fin de transformar el edificio en una verdadera máquina de ingeniería alimentado por recursos renovables, consiguiendo el logro más alto de «Clase A».
La cuestión de la sostenibilidad es fundamental en el diseño del edificio: el techo es el hogar de dos paneles solares para una producción de 180 kW.
Un evolucionado sistema amortiguador de masa coloca el proyecto entre uno de los más seguros desde el punto de vista anti-sísmico.
El confort y la calidad del aire dentro de las residencias está garantizado por un sistema de climatización, tanto para calor como para frío, formado por losa radiante y ventilación automática.
Un sistema de microfiltración del agua permite que ésta llegue limpia y purificada directamente a las residencias.
Un sistema domótico integrado y personalizable permite un control total de las diversas funciones de la casa desde una única interfaz.



















































