Villa Stein – de Monzie
Introducción
Ya reconocido mundialmente, Le Corbusier diseña amplias casas en los barrios burgueses de las afueras de París, aunque no llegará a construirlas todas. La más llamativa es la casa “Les Terrasses”, levantada en Garches en un terreno que en la actualidad pertenece a la comuna de Vaucresson.
Estuvo destinada a Michael Stein, hermano de la escritora Gertrude Stein, y a su esposa Sara, así como a Gabrielle de Monzie, divorciada del ministro radical socialista Anatole de Monzie y fiel defensora de Le Corbusier, gracias a quien pudo llevar a cabo el pabellón de 1925. El lujo de estos espacios molestará a los críticos preocupados por la dimensión social de la arquitectura moderna.
En la película “L´Architecture aujourd´hui”, que Pierre Chenal dedica al arquitecto en el año 1930, Le Corbusier se interpreta a sí mismo llegando a la casa por la alameda de grava en su coche Voisin, para relacionar explícitamente de esa manera la máquina con la vivienda. Sin embargo, cuando vuelve a visitar la casa en 1959, descubre en ella una “deliciosa aparición” donde se mezclan poesía, técnica, biología y escala humana.
Situación
Construida en la Rue du Professeur Victor-Pauchet, Garches, Francia. En la actualidad el terreno pertenece a la Comuna de Vaucresson, departamento del Altos de Sena, en el distrito de Boulongne-Billancourt y en el contón de Chaville.
Concepto
El arquitecto en las «Cuatro composiciones» manifiesta la concepción desde la volumetría de las casas por él realizadas a modo de repertorio, de modelaje del sólido. La casa Stein, según esta reflexión, forma parte del segundo tipo del que dice:» El segundo tipo revela la comprensión de los órganos en el interior de una envoltura rígida, absolutamente pura. Problema difícil, acaso delectación del espíritu; gasto de energía espiritual en medio de las trabas que se han impuesto».
Este es un ejercicio donde la intuición de la forma exterior del edificio es anterior a su distribución espacial y funcional, en una imposición de reminiscencias clásicas, y que se resuelve según los criterios previos establecidos por el ideario del Movimiento Moderno.
Comparaciones
El crítico británico Colin Rowe comparó la retícula geométrica realizada alternativamente con tramas anchas y estrechas, con las que se diseñó la casa, con la planta de Villa Malcontenta de Palladio, y puso de relieve así una de las numerosas correspondencias ocultas que abundan en la obra de Le Corbusier. Asimismo, le pareció reconocer, junto a Robert Slutzky, en las escaleras de caracol y las paredes curvas de la villa, consideradas por Le Corbusier como “órganos comprimidos”, los “objetos tipo” que figuran en los cuadros puristas como “La Nature morte á la pile d´assiettes” de 1920. De esta forma, se puede comparar la casa, por así decir, con un cuadro descomprimido en el espacio.
Espacios
Se trata de un edificio de volúmenes aislados y rodeado de jardín, con casa para los porteros situada junto a la cancela de acceso. Al igual que la Villa Savoye, de espacios abiertos formados por las distintas terrazas de las plantas.
La sensación cúbica se rompe únicamente con volúmenes de forma ovalada, inspirados en las chimeneas de los grandes trasatlánticos. Sin embargo, se detecta aún en ambas casas un principio clásico: el sistema de proporciones de las fachadas es netamente palladiano. La disposición vertical de los espacios resulta bastante clara y lógica.
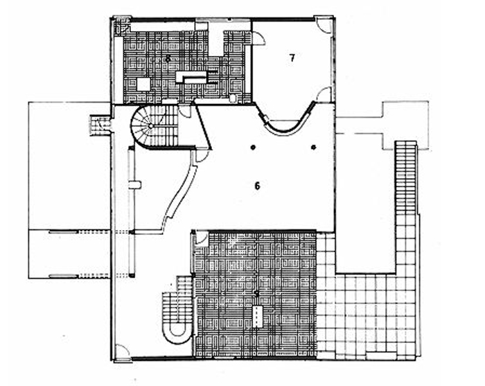
Plantas
Planta baja
El acceso, en la planta baja, se realiza a través de un gran vestíbulo de entrada que queda rodeado por las habitaciones de servicio. La planta baja también alberga el garaje.
En la entrada principal destaca un sobradillo en voladizo, flanqueado de manera sistemática por la entrada del servicio coronada por un balcón.
Primera planta
Una escalera y una doble altura recortada comunican la planta baja con la sala de estar desarrollándose la vivienda a partir de esta primera planta donde además de una gran terraza, se ubican la cocina y el comedor. Estas estancias son compartidas por la familia Stein y Gabrielle de Monzie.
Una pared curva separa el comedor del salón, que cuelga como un balcón sobre el vestíbulo y comunica con una amplia terraza cubierta.
La casa Stein tiene una voluntad manifiesta de conseguir para la vivienda un plano superior al del terreno recurriendo a la estrategia que había usado [http://es.wikiarquitectura.com/index.php?title=Categor%C3%ADa:Wright,_Frank_Lloyd Frank Lloyd Wright] en su casas de la pradera (A Home in a Prairie Town) donde peralta el plano de la casa introduciendo en la planta baja usos ajenos y subsidiados de la vivienda.
Segunda planta
La segunda planta es la de dormitorios y se accede por una escalera que ocupa distinto lugar que la primera, en ella los dormitorios se distribuyen a través de una sucesión de espacios de geometría suave y sensible.
En esta planta reservada a los dormitorios, resulta más palmaria la separación de los ambientes de cada familia, se distinguen dos apartamentos, cuya disposición que combina dormitorios y anexos, demuestra el conocimiento que poseía Le Corbusier del arte de la distribución elaborado en el siglo XVIII por arquitectos franceses como Jacques-François Blondel.
Planta terrado
La última planta está destinada en su totalidad a amplias terrazas. Un ventanal rectangular se abre a ellas hacia la parte delantera de la casa, pero estas se extienden más ampliamente hacia el jardín. También se accede a ellas por unas escaleras helicoidales, exteriores a los dormitorios.
Fachadas
- Fachada de entrada
La fachada de la entrada resulta muy plana y sigue un trazado regulador basado en el número áureo que define la medida y el lugar de los ventanales.
- Fachada trasera
Volumétricamente la casa Stein es un paralelepípedo hermético horadado en su fachada trasera. Esta fachada que es la del jardín muestra la complejidad del juego de volúmenes interiores por su transparencia, así como el paseo que comunica las terrazas entre sí y con el jardín, al que conduce una escalera exterior.
Estructura
Una cubierta plana, estructura modulada de hormigón sobre pilares, planta libre, y cerramientos tersos independientes del resto de los elementos estructurales, articula sus usos alrededor de un recorrido casi ceremonial que parte de la misma puerta a la parcela y que concluye en las cubiertas del edificio.




































