Archivo Histórico de Euskadi
Introducción
El edificio que alberga el Archivo Histórico de Euskadi se ubica en la calle María Díaz de Haro 3, próxima a la gran vía de Bilbao, España, en una parcela entre medianeras de 20 metros de ancho y 70 metros de fondo, perteneciente a una de las manzanas del ensanche de la ciudad.
Bajo rasante, el edificio ocupa la totalidad de la parcela. Sobre rasante solo se ocupan los primeros 25 metros, siguiendo los criterios establecidos en la normativa urbanística.
Espacios
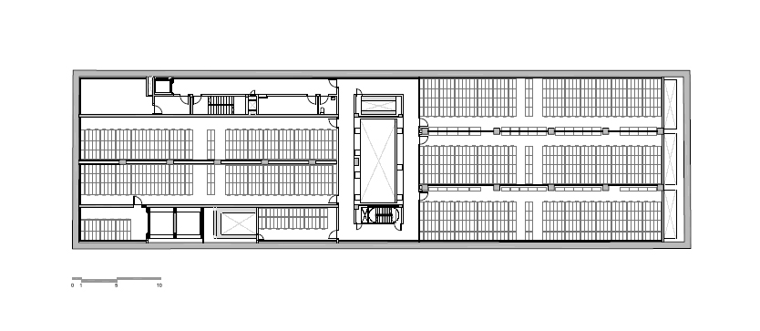
El programa está organizado por plantas, en función del grado de control de acceso de los distintos usos del edificio:

Usos públicos
En planta baja, planta primera y parte del primer sótano se encuentran los usos públicos de libre acceso, tales como el vestíbulo principal, la recepción, varias salas de exposiciones y el salón de actos que también puede utilizarse como un espacio multifuncional. A través del vestíbulo de planta baja se accede al jardín del patio de manzana, un espacio concebido para acoger distintos usos como exposiciones al aire libre, zona de lectura o proyecciones.
Usos privados
En planta segunda se encuentra la sala de lectura y consulta de documentación, cuyo acceso al público es restringido mediante acreditación en la recepción.
En el resto de plantas sobre rasante se encuentran las zonas administrativas, laboratorios y locales de tratamiento documental, cuyo uso es privado. Bajo rasante, también de uso privado, se encuentran los depósitos documentales, salas de instalaciones y aparcamiento. Estos espacios disponen de un acceso directo desde la calle a través de un montacoches.
El uso principal de los tres primeros sótanos es como locales de archivo documental capaces de albergar 20 kilómetros lineales de estantería.
Fachadas
Fachada exterior
Se ha proyectado una fachada principal de vidrio con una gran vibración que aumenta la percepción del edificio, para romper con la planeidad de la calle y remarcar su ubicación. Se busca una gran transparencia que permita entender desde el exterior como funciona y se estructura el edificio. El vidrio de la segunda piel está serigrafiado con algunos de los textos que se conservan en el archivo, de manera que no se entienda el edificio como un lugar hermético, privado o ajeno al ciudadano.

Fachada interior
La fachada interior se ha proyectado con un lenguaje que trata de establecer un diálogo formal con el resto de edificios del patio de manzana, sin renunciar al carácter contemporáneo del edificio. Con esta fachada y con el jardín, se busca una imagen amable para los usuarios del patio, dignificando una tipología habitualmente poco cuidada en los edificios del ensanche.
Espacios
En el interior del edificio se ha apostado por el diseño de dobles alturas y cruces visuales que enriquezcan las relaciones entre los distintos usos existentes en el edificio. Las zonas de trabajo proyectadas son diáfanas, libres de pilares y flexibles de cara a facilitar la adaptabilidad a posibles cambios funcionales.
Se ha potenciado el uso de la luz y la ventilación natural al desarrollarse gran parte del programa bajo rasante, de tal manera que en los vestíbulos de acceso a los depósitos documentales o el garaje, que se encuentra a 20 metros de profundidad, disponen de luz y ventilación natural.
A su vez, los núcleos de comunicaciones verticales y núcleos de aseos del edificio sobre rasante disponen de luz natural, resultando la mayor parte de los espacios de estancia y circulación luminosos y agradables.
Materiales
Los muros del sótano, que ocupa la totalidad de la parcela, se ejecutaron con hidrofresa, de tal manera que ya estaban realizados antes de empezar la excavación de la roca del terreno. Esta decisión supuso que se acortaran los tiempos de ejecución de los sótanos y reducir de manera muy importante las vibraciones a los edificios medianeros, algunos de ellos de casi 100 años de antigüedad.

El uso principal de los tres primeros sótanos es como locales de archivo documental capaces de albergar 20 kilómetros lineales de estantería, dotados con instalación de climatización para control de temperatura y humedad, así como un sistema de protección al fuego mediante extinción con agua nebulizada.
Climatización
Se proyectó un sistema de climatización de gran eficiencia que incorpora recuperación entálpica de energía, y freecooling, de modo que se aprovechan al máximo las condiciones interiores y exteriores para reducir el consumo de energía. Además en torno al punto de toma de aire de la enfriadora en el patio de manzana, se ha proyectado un jardín con vegetación, que ayuda a refrescar el aire en los meses más calurosos y ayuda a que el sistema trabaje de una forma más eficiente.
Energía e iluminación
El uso de la energía en iluminación se limita utilizando equipamientos de alto rendimiento y aprovechando la luz difusa para la iluminación de todas las zonas de tránsito en sótanos y garaje, como se ha comentado anteriormente. Estos espacios, gracias al uso de colores claros y grandes huecos, son muy luminosos durante los periodos diurnos sin necesidad de luz artificial, a pasear de encontrase hasta 20 metros de profundidad.























































