Biblioteca de Seattle
Introducción
La Biblioteca Pública de Seattle fue inaugurada en mayo de 2004. Su diseño afianzó la carrera del arquitecto Rem Koolhaas por tratarse de un impresionante edificio, que combina sus líneas futuristas con la funcionalidad de una biblioteca.
Antes de completar el diseño del edificio, Koolhaas se reunió con representantes de Microsoft, Amazon y otras organizaciones para discutir el futuro de los libros y la biblioteca. En un mundo moderno dominado por Internet y los medios digitales, el libro convencional parecía dirigirse hacia el olvido. Sin embargo, después de muchos meses de investigación se concluyó que el «libro» estaba muy lejos de convertirse en una cosa del pasado. Por lo tanto, “la espiral”, era una nueva forma en la entrega de libros a los clientes dentro de un sistema de biblioteca. En lugar de tener los libros en diferentes estantes y pisos, la espiral inclinada permitió una fila continua de los libros que los hacen “fácil de navegar”.
Desde el exterior, se puede ver un gran edificio de cristal, de líneas rectas que se cruzan. Está articulado por grandes bloques a diferentes niveles que corresponden con las dependencias de la biblioteca. Es un edificio que se encuentra en armonía con el skyline de Seattle y el aspecto urbano de la ciudad.
La biblioteca ha sido un gran éxito para la ciudad, ayudando a generar nuevas actividades económicas, gran parte de las cuales proceden del turismo. En su primer año, la biblioteca recibió 2,3 millones de visitantes. Paul Goldberger, del The New Yorker ha comentado del edificio «…es la nueva biblioteca más importante que se construirá en una generación, y la más estimulante…» La construcción ha llegado a ganar numerosos premios, incluyendo el Premio de Platino de la ACEC y el Premio de Arquitectura National AIA 2005.
Situación
La Biblioteca se encuentra situada en la céntrica Fourth Avenue de Seattle, en la manzana delimitada por la Cuarta y Quinta Avenida y las calles Madison y Spring, estado de Washington, Estados Unidos.
Concepto

El concepto consiste en la reinvención de la biblioteca como un punto de acceso a la información, presentado en una amplia variedad de soportes. “Las nuevas bibliotecas no reinventa ni modernizan a las tradicionales, simplemente están empaquetadas en una nueva forma”, explican en el estudio OMA. Para su realización, Koolhaas aplicó su característica interpretación de la arquitectura y estableció para el proyecto que el edificio sería flexible ante futuras ampliaciones, con la posibilidad de agrupación de espacios según las necesidades del edificio, y que las plataformas conectadas ofrecerían espacios abiertos al estudio, trabajo e interacción social.
La Biblioteca Central de Seattle redefine la biblioteca como una institución dedicada ya no exclusivamente al libro, sino como un almacén de información donde todas las potentes formas mediáticas, nuevas o antiguas, se presenten por igual y de manera legible. En una época donde a la información se puede acceder en cualquier lugar, es la simultaneidad de todos los medios de comunicación y, más importante, la curaduría de su contenido lo que hará una biblioteca vital.
La flexibilidad en las bibliotecas contemporáneas se concibe como la creación de plantas genéricas en las que puede desarrollarse casi cualquier actividad. Los programas no están separados, las habitaciones o espacios individuales no dan caracteres únicos. En la práctica, esto significa que las estanterías definen generosas, aunque anodinas, áreas de lectura en la primera jornada, pero, a través de la expansión incesante de la colección, inevitablemente vienen a invadir el espacio público. En definitiva, en esta forma de flexibilidad, la biblioteca estrangula las mismas atracciones que la diferencian de otros recursos de información.
En lugar de su actual flexibilidad ambigua, la biblioteca podría cultivar un enfoque más refinado organizándose en compartimentos espaciales, cada uno dedicado a.., y equipado para…, servicios específicos. Adaptaciones flexibles dentro de cada compartimento, pero sin la amenaza de que una sección obstaculice las otras.
Espacios

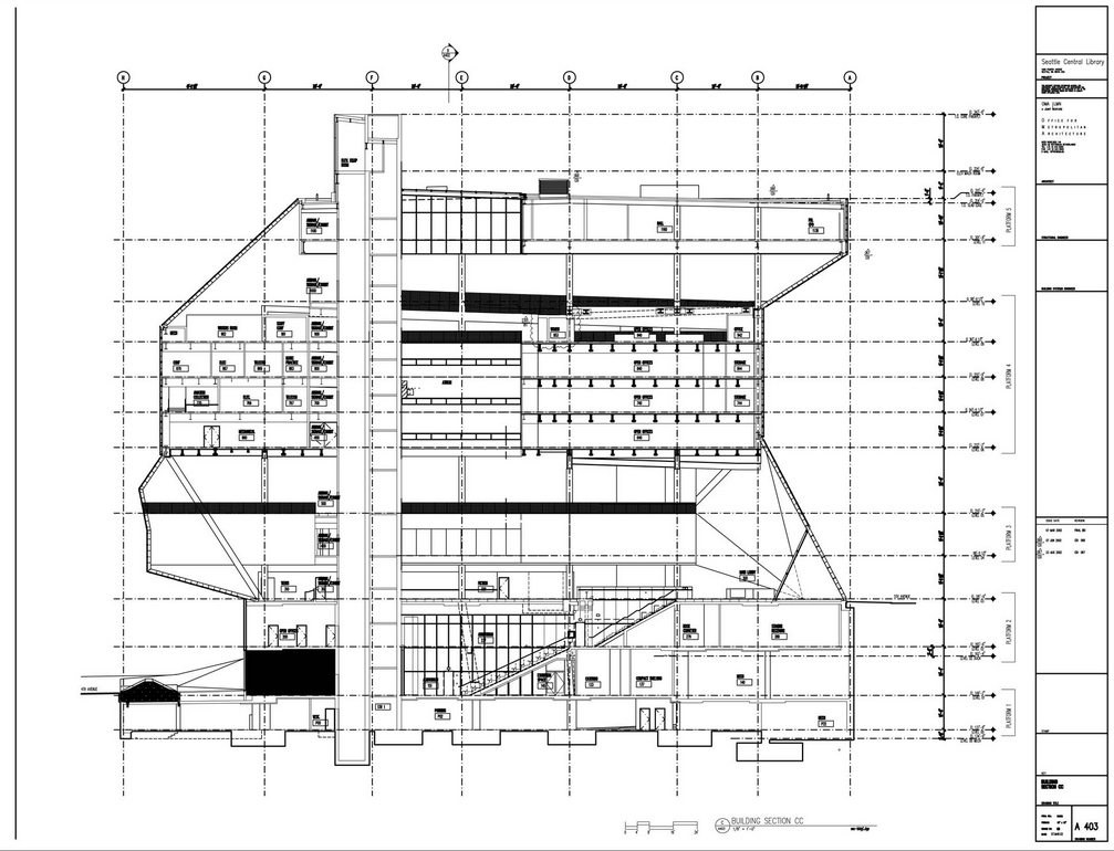
Desde el exterior el edificio está dividido en 5 bloques colocados uno encima del otro. Estos bloques no son aleatorios sino un reflejo de los usos interiores.
En el interior del edificio, una estructura en espiral ofrece una superficie continua con laterales recubiertos de estanterías que ofrecen las diferentes colecciones temáticas de libros. Dicha espiral, que se eleva cuatro plantas, ha requerido la creación de un sistema de rampas en zig-zag accesibles a todas las edades y necesidades. Estas rampas están apoyadas en delgadas columnas económicamente construidas.
La biblioteca utiliza consistentemente nombres no tradicionales que ayudan a hacer su estancia emocionante. La ubicación de las colecciones de libros se llama “el espiral», la planta tercera de la biblioteca se denomina «sala de estar» y el espacio de computación se denomina «cámara de mezcla». Las estanterías tienen en los extremos paneles indicadores que ayudan en la organización.
La característica principal del interior son sus grandes espacios públicos de lectura y ocio, iluminados con luz natural que entra por sus paredes de cristal. Destacan también las plantas de colecciones, consistentes en una rampa que continúa a lo largo de las 4 plantas. Todas las zonas se unen con escaleras mecánicas de colores vistosos (exceptuando las colecciones), y el mobiliario y objetos son de un diseño moderno y colorista.
La biblioteca ofrece un “nivel de encuentro” con paredes curvas pintadas de rojo y un área infantil con juguetonas columnas inclinadas.

Nivel 0
En el nivel 0 se ubica el garaje al que se puede llegar desde la calle Spring, tiene 143 plazas.
Nivel 1
Con acceso por la Cuarta Avenida en este nivel se encuentra el gran vestíbulo de 1200m2, sección pública de computadoras, servicio de recepción, teléfonos públicos y el área infantil.
Área infantil
Los niños tienen su propia biblioteca dentro de la biblioteca. Los asientos son de color azul, los pisos son de bambú con grandes círculos de goma en color rosa fuerte y amarillo ácido . Los niños, naturalmente, tienen un espacio propio para computación, así como una zona de cuentos cubierta de verde musgo bajo una viga de soporte diagonal. Dependiendo del punto de vista, se asemeja a un bunker o a un útero.
El área cuenta con 22 computadoras, un baño familiar, baños para niños y niñas, y espacio para de estacionamiento para los cochecitos.
Auditorio
En esta planta también se encuentra el Auditorio Microsoft, con 275 asientos. La parte posterior del recinto se puede expandir, agregando 150 asientos adicionales para programas mayores.
Sección idiomas

El Centro de Aprendizaje Evelyn W. Foster, con su sección de alfabetización e idiomas del mundo también se encuentra en esta planta. Cuenta con un piso de la artista visual Ann Hamilton que es una fiesta de idiomas: 11 tipos diferentes de alfabetos marcados en la madera. A lo largo de la pared se distribuyen las cabinas de sonido para el aprendizaje del idioma, con un elevado tapizado acolchado que actúa como una especie de fondo de pantalla permanente. Esta zona cuenta con estaciones de trabajo de aprendizaje de idiomas con audio, video y programas de aprendizaje de idiomas por ordenador, y un laboratorio de tecnología que proporciona acceso a las tecnologías de adaptación.
Nivel 2
El nivel 2 es para los miembros del personal y no está abierto al público. Desde este nivel se realiza el envío, recepción, clasificación y servicios técnicos de los libros y colecciones.
Nivel 3
La sala de este nivel se denomina “sala de estar”, (Living Room), e incluye áreas de lectura o recogimiento. Se trata de un espacio amplio y ventilado, con una altura máxima de 15m. Los patrones de las brillantes alfombras corresponden a las plantaciones exteriores ubicadas en la entrada a la biblioteca por la Quinta Avenida.
En esta planta, también se encuentran la recepción o entrega de libros, la tienda de regalos, la cafetería, colección de videos y DVD, colecciones, nuevos libros, revistas y periódicos populares y teléfonos públicos de pago.
La base del atrio se encuentra en este nivel. El dramático espacio permite a los visitantes que miran hacia arriba ver las salas de reuniones en el nivel 4, y la Cámara de mezcla Charles Simonyi en el nivel 5.
Nivel 4
El nivel 4 cuenta con cuatro grandes salas de reuniones. Las paredes de los pasillos, los suelos y el techo están pintados en profundos tonos de rojo y rosa, mientras que las salas de reuniones en colores apaciguadores y tonos neutros como el marrón y el gris. Dos laboratorios de Centros de Formación en Tecnología Boening son utilizados para la instrucción pública y personal en informática.
Nivel 5
A la Cámara de Mezclas, 1811,61m2, los visitantes acuden en busca de ayuda en cuestiones generales y de investigación. En esta planta se ubican el laboratorio grande de computación, el Centro de Recursos de Empleo, libros de trabajo y estudios, escáneres y equipos de edición de imágenes, directorios telefónicos actualizados, enciclopedias, tablón de anuncios de la comunidad, documentos de revisión pública y declaración de impuestos, Legrady Instalación de Arte, «Hacer visible lo invisible » y mesas de estudio.
El carácter del espacio es plateado y de alta tecnología, el techo es de color negro y el piso de aluminio. Esta planta también cuenta con la mayor concentración de tecnología de la biblioteca, 140 computadoras, y es la entrada a la zona conocida como “espiral de libros”
Nivel 6-9, “Espiral de libros”

Los 4 niveles que ocupan las estanterías del “espiral de libros” están conectados por rampas suaves. La espiral permite a todos los clientes, incluyendo a las personas con discapacidad, moverse a lo largo de toda la colección sin depender de escaleras, escaleras mecánicas o ascensores. Las escaleras y paradas de ascensor están etiquetadas con los números del Sistema Decimal Dewey, para ayudar a la gente a encontrar los elementos en cada piso.
Nivel 10
El atrio que nace en el nivel 4 llena de luz los 1114.84m2 de la sala de lectura Betty Jane Narver, con 400 asientos, un techo a 12.19m de altura y vistas a la bahía de Elliott. Las salas Hugh y Jane Ferguson Seattle Room también se encuentran en este nivel, con vistas a la sala de lectura. Se accede a través de escalera mecánica o ascensor.
Nivel 11
El Nivel 11 cuenta con oficinas administrativas, incluyendo la oficina del bibliotecario de la ciudad, la sala Virginia Burnside Board, Recursos Humanos y el comedor del personal .
Por la noche, la Biblioteca Pública de Seattle se ilumina destacando entre los demás edificios. Se trata de un increíble y funcional edificio de uno de los arquitectos más importantes del mundo.
Estructura
En este elegante edificio se realizó un estudio de la “forma” seguido de la “función”. Los arquitectos del proyecto organizaron los requerimientos programáticos de la biblioteca en cinco plataformas independientes, aunque conectadas, que se apilan verticalmente permitiendo la optimización de las vistas de los alrededores, envueltas en una piel de acero y cristal.

Este paquete transparente fue presentado a los ingenieros estructurales con un conjunto de peticiones: no utilizar ninguna columna en las esquinas, no colocar ninguna columna vertical, y en una palabra utilizar el menor número posible de columnas en general. En esencia, el éxito del proyecto dependía de hacer un edificio de cristal con 12 plantas, que pareciese flotar sin ningún apoyo, en una zona de seísmos calificada UBC Zona 3.
La solución de los ingenieros de MKS, en colaboración con Arup, fue la de utilizar dos sistemas estructurales diferentes, en capas, con un bloque central de hormigón que proporciona gran parte de la rigidez estructural.
Sistemas estructurales
Primer sistema
En el primer sistema, cerchas perimetrales a las plataformas, con una profundad que abarca varios pisos soportan las cargas de gravedad del edificio. Las cerchas se apoyan en columnas inclinadas y cuidadosamente posicionadas para aumentar las oportunidades de contrapeso, con plataformas en voladizo de 1,32 m
Segundo sistema
El segundo sistema, la rejilla de acero en forma de diamante, forma el exoesqueleto del edificio. La rejilla de acero proporciona el sistema lateral del edificio, interconecta las cerchas de las plataformas, sirve de acabado arquitectónico de interiores, y soporta la cortina de vidrio que recubre la construcción.
Conexiones de deslizamiento especialmente diseñadas unen lateralmente la rejilla de acero a las armaduras de las plataformas. Las conexiones fusionan los dos sistemas estructurales, a la vez que previenen la transferencia de las cargas de gravedad a la rejilla de acero. El sistema mantiene la delgada rejilla sin necesidad de protección contra el fuego, y lo más importante, con la estética deseada. Se realizaron maquetas a escala real de las conexiones, moldeadas en 3-D, para probar y comprobar los resultados.
Exoesqueleto

El exoesqueleto fue diseñado de modo que se pudieran usar cuadrículas de acero comunes, cuyo tamaño W12x22, pudieran ser intercaladas en las estructuras. La forma y tamaño de diamante fueron optimizados a 10.16cm por lado y una altura de base de 17.78cm según las placas de vidrio plano del mercado, buscando la fabricación más eficiente y tratando de eliminar la necesidad de montantes secundarios. La utilización de piezas estandar facilitó la prefabricación de la parrilla de acero estructural en escalas de hasta 2.16m de altura, simplificando en gran medida la construcción.
Refuerzos
Se desarrollaron tres soluciones par alas áreas interiores que requerían refuerzos:
- Se reforzó la rejilla de acero con una capa adicional según lo que reflejaba el patrón y la ubicación del estrés.
- Hubo una escasa inserción de ángulos transversales en las columnas de intervención, permitiendo llevar las cargas de forma más directa desde los puntos de máxima tensión a las columnas de soporte más cercanas.
- Se utilizaron columnas de gravedad en pendiente, en línea con el plano de la cuadrícula sísmica.
Materiales
El edificio está cubierto por una asombrosa estructura de vidrio y acero.

Los costes de construcción fueron menores que los de la mayoría de las nuevas bibliotecas construidas en las principales ciudades. Diseñada teniendo en cuenta la función y la estética, el edificio ha incorporado muchos elementos apoyando la sostenibilidad, por lo que ha sido reconocida con el Certificado “Silver” otorgado por US.Green Building Council, convirtiéndose en uno de los edificios más grandes en recibir una certificación de Liderazgo en energía y desarrollo.
Koolhaas es famoso por su uso creativo y económico de los materiales prosaicos. Cada una de las 11 plantas se merece un detallado estudio. Hay pisos de aluminio que rinden homenaje a los minimalistas pisos rejilla de Carl Andre. La madera se recicla a partir de piezas con los extremos astillados y se tiñó en una variedad de tonos lisos. La mayoría de las alfombras están realizadas con hilos de metal para poder limpiarlas directamente con agua. Luego están los pisos en los que se vierte hormigón cubierto con gruesas capas de color de poliuretano.
Koolhaas ama los colores brillantes. Las escaleras y las entradas a las áreas de reunión pública están pintadas en tonos rojos y amarillos lima. En el interior la estructura metálica está pintada de color azul bebé.
En la zona dedicada al aprendizaje de idiomas el piso de 669m2 es de madera de arce, con decoración de la artista visual Ann Hamilton.
Los pilares con bases blancas y brillantes tienen altas terminaciones en color negro, los aislamiento contra el fuego están rociados con purpurina. Sólo en las zonas de plaza pública la alfombre sube el nivel, con fotografías de Petra Blaisse sobre material vegetal serigrafiado sobre la tela de la alfombra, creando un efecto laboratorio de biología.
Las escaleras mecánicas están acabadas en un color lima fluorescente, bordeada con paneles retroiluminados. Dichas escaleras sólo suben, debiéndose bajar en ascensor o escaleras no mecánicas.
Además de las asimetrías y el color, Koolhaas hace un uso fabuloso del hormigón. Enormes losas de hormigón armado, con pequeñas grietas de unión e inundadas con variación tonal parecen trazar una especie de tiempo geológico.
En su construcción se han utilizado: 18.400m3 de hormigón armado, 2.050tn de barras de refuerzo, 4.644tn de acero, en el exterior 9.994 piezas de vidrio, cortina exterior 126.767m2. Alrededor de la mitad de los paneles de la construcción son de vidrio de tres capas con una malla expandida de metal atrapada entre las dos capas exteriores. La malla, una chapa de aluminio que se corta y se estira, reduce el calor y el deslumbramiento. La mayor parte del vidrio se limpia dos veces al año, y más a menudo para las superficies que lo requieran.
Video









































































