Edificio Disseny Hub Barcelona
Introducción
El Edificio Disseny Hub Barcelona, Centro de Diseño de Barcelona, también conocido como DHUB, obra del estudio MBM Arquitectos acoge el FAD (Fomento de las Artes y el Diseño), el BCD (Centro de Diseño de Barcelona), además de otros museos hasta ahora distribuidos por la ciudad como el Museo de Artes Decorativas, el Textil y de Indumentaria, el Museo de Cerámica, el de Artes Gráficas. También la Biblioteca El Clot-Josep Benet.
Originalmente el edificio, con una superficie funcional de 24.839m2 de los cuales 7.500m2 se dedican a espacio de exposición y 29.352m2 construidos, debía dedicarse a acoger únicamente la biblioteca, pero el proyecto fue evolucionando y finalmente respondió a un concepto más amplio que integró las otras organizaciones.
La construcción se distribuye en dos partes, una subterránea que aprovecha el cambio de nivel provocado por la remodelación de la plaza, y otra sobre nivel de calle con forma de paralelepípedo. Se trata de un equipamiento de última generación, tanto por las prestaciones como por el carácter sostenible, motivo por el que ha recibido el Distintivo de Garantía de Calidad Ambiental otorgado por la Generalitat de Catalunya y la Etiqueta Ecológica de la Unión Europea. El Centro de Diseño de Barcelona es uno de los más grandes museos de diseño del mundo y uno de los pocos con un objetivo específico, no sólo ser un espacio para el diseño sino también un catalizador para el encuentro y la investigación en temas relacionados con los beneficios tanto culturales como económicos del sector, dentro del mercado contemporáneo, en constante cambio.
Situación
Concebido como un espacio de uso público y tránsito, uniendo a modo de rambla el barrio de Glórias con el de Poblenou y salvando más de 14m de desnivel, el DHUB se ubica en el nuevo centro neurálgico de Barcelona, Plaça de les Glòries Catalanes 37-38, Catalunya, España. La parte más visible de la estructura se enfrente a la Plaza de las Glórias, aunque la mayor superficie del edificio es subterránea, aprovechando el desnivel entre la plaza y el barrio @22 de Pueblo Nuevo hacia donde mira la otra fachada del Centro de Diseño.
Acompañado por la Torre Agbar de Jean Nouvel y el Mercado de Los Encants de b720, el Dhub se convierte en un elemento clave para la renovación de este nuevo centro estratégico de la ciudad.
Concepto

En la medida de lo posible, y para no alterar el carácter de un barrio, el nuevo edificio debe estar en armonía con el resto de las construcciones del lugar. En este caso, el edificio está orientado en el eje mar-montaña, siguiendo las reconocibles líneas de la cuadrícula del Eixample, y actúa como punto de referencia direccional.
En este caso el diseño del edificio también estuvo condicionado por la cercanía de la Torre Agbar, por su evidente verticalidad. El Disseny Hub Barcelona es remarcadamente horizontal, estableciendo un diálogo, de este modo, con la torre, una posición totalmente opuesta a cualquier tipo de competición. Este deseo de unir las diferentes partes de la ciudad es una premisa del proyecto.
El diseño de un edificio que gira en torno al diseño es un delicado acto de equilibrio: por un lado se tiene que proporcionar un receptáculo neutro que pueda reunir todos los capítulos de su programa y por otro expresar las ambiciones de Barcelona para convertirse en un centro de diseño por excelencia.
Espacios
El arquitecto Francesc Gual, de MBM Arquitectes comenta: ” … la fachada trasera del edificio debía encarar la calle Ávila de Poblenou (Pueblo Nuevo), sin obstruir los puntos laterales sobre la plaza. Además tenía que ocupar el mínimo espacio en planta baja, dar cabida a las salas de exposiciones en las diferentes plantas y situarse sobre el cinturón de circunvalación de las Glórias, finalmente el núcleo de escaleras y ascensores debió ser integrado en el cuerpo principal. Con el fin de superar todos estos factores y al mismo tiempo dar al edificio una forma racional e identificable, pensamos que la mejor solución sería un diseño de planos y aristas…”
La diferencia de nivel entre la Plaza de las Glòrias y Pueblo Nuevo se resuelve con el edificio en sí, haciendo que el techo del área semi- subterránea se convierta en parte de la plaza, debidamente ajardinada y tratada como espacio público. La organización interna del DHUB es neutra y flexible, adaptable a los usos que se quiera en cada zona.
Acceso
El acceso al edifico se realiza por el vestíbulo desde dos puntos diferentes, por el lado de las Glórias, nivel 14,50m, o desde la prolongación de la calle Ávila, atravesando la zona verde y el espejo de agua, nivel 6,98m.

Espejo de agua
Los arquitectos Jordi Truco y Sylvia Felipe, en colaboración con MaterFad, han diseñando una estructura autoportante que parece flotar sobre el espejo de agua ubicado en el patio de acceso al Disseny Hub Barcelona por la calle Ávila. Esta pieza realizada con tecnología Hipermembrana será retirada en el año 2014.
Desde el vestíbulo se llega a todos los servicios situados en el sótano y también, mediante un sistema de escaleras mecánicas, escalinatas y ascensores, a los pisos superiores. Aunque los diferentes espacios tienen dimensiones y características arquitectónicas diversas, globalmente forman un todo unitario, en el que el Auditorio, que corona el conjunto, se erige como pieza fundamental.
Bajo nivel 14.50m

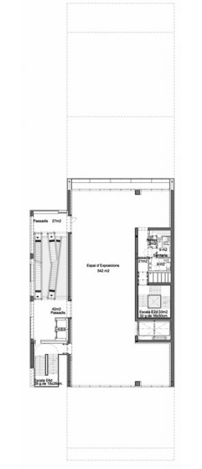
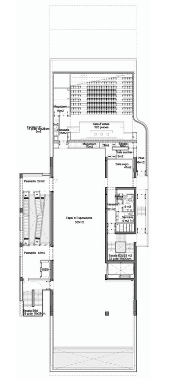
La mayor superficie del edificio se ubica bajo el nivel de los 14.5m, distribuida en dos plantas y un altillo. En ella se ubican las instalaciones principales del edificio, como la sala principal de exposiciones, las salas dedicadas a la reserva y gestión de colecciones del museo, las oficinas centrales, la biblioteca, el centro de documentación y las salas dedicadas a la investigación y actividades educativas. El vestíbulo de este nivel puede ser considerado una plaza cubierta en la cual se congregan la mayoría de actividades públicas que ofrece el centro, la cafetería restaurante en el nivel +6,98 m con casi 900m2 y la tienda.
Biblioteca

La Biblioteca El Clot-Josep Benet ocupa una superficie de 1.732m2 repartidos en dos plantas organizadas de forma flexible y funcional para dar servicio a diferentes públicos. Entre los servicios que ofrece: soporte a la formación y el autoaprendizaje, formación en TIC, acceso a internet, Wi-Fi, ordenadores, trámites en línea, soporte y actividades especiales para las escuelas y actividades culturales y de difusión de la cultura.
Sala de exposiciones
La sala principal de exposiciones, 3.990m2, se ubica en la parte baja del edificio, bajo el nivel +14,50m, y recibe luz a través de una fosa producida por el cambio de niveles. Esta iluminación se ve reforzada por el espejo de agua de grandes dimensiones ubicado en el patio que crea un efecto reflector y por seis linternas que se elevan hasta el nivel de calle para captar la luz exterior en el jardín de la azotea y depositarla en la planta de exposición sobre unas superficies de vidrio translúcido alineadas entre los suelos de hormigón pulido.
Sobre nivel 14,5m
El edificio levantado sobre el nivel 14.5m tiene forma de paralelepípedo cortado al sesgo, e igualando en anchura a la calle Ávila, como una continuación de la misma hacia las Glòrias. Según la planificación, se desarrolla en voladizo sobre la plaza de acceso, de esa manera ocupa la mínima superficie en planta y no reduce el espacio público circundante. Además porque las vicisitudes del derribo del anillo y el cambio de trazado del tranvía no permiten disponer de más extensión. Se prolonga en voladizo hacia la plaza y permite así la edificabilidad prevista, a la vez que se convierte en un signo de urbanismo arquitectónico sobre las vías de circulación. En este cuerpo del edificio se ubican las exposiciones temporales de larga y corta duración, una sala de actos y un gran auditorio.
Auditorio
El auditorio ofrece 320 asientos convertibles en pequeños centros de trabajo en caso de hacer servir el espacio como centro de convenciones. De la fila 1 a la 7 se dispone de butacas con mayores dimensiones y una amplia mesa de trabajo con conexiones multimedia, las filas posteriores no disponen de mesas.
Se trata de un volumen regular, con un espacio central geométrico definido por paredes verticales y rectas, techo horizontal y piso escalonado. En su construcción y decoración se han utilizado los mismos elementos que para las salas de exposiciones y el vestíbulo.
Estructura
El edificio está formado por dos partes, una subterránea, el 80% de la construcción, compuesta por tres bloques, y otra sobre nivel.
La forma del edificio está condicionada por el desnivel del terreno. Se trata de un edificio que presenta diversas singularidades estructurales, una de ellas es el cuerpo en voladizo con una luz de 36m, aproximadamente. Su estructura es mixta, de acero laminado y hormigón armado y postensado.
La construcción del edificio la constituyen más de 24.000 m² de forjado macizo y 3.500 m² de forjado aligerado, ejecutados mediante 25.000 m³ de cimbras PERI. El edificio del bloque 2 está compuesto por cuatro muros, de los cuales dos son trepados, y formados por aproximadamente 400 m² de trepa por planta en cada una de las cinco plantas que lo forman desde el vestíbulo hasta la cubierta.
Materiales

Las fachadas exteriores del edificio están cubiertas únicamente por dos materiales: placas de composición metálica color gris oscuro, resultado de una aleación entre zinc, hierro fundido y aluminio, y vidrio, materiales que le otorgan un carácter industrial. El pavimento exterior pone un toque de color alrededor del carácter serio de la fachada, una alfombra verde en la plaza y un grafismo luminoso.
Grafismo luminoso BruumRuum
BruumRuum es el nombre del proyecto de David Torrents&artec3, en colaboración con LEDsCONTROL, basado en un grafismo luminoso a nivel del suelo que plantea un diálogo especial entre el ciudadano y el espacio público a través del ruido y la luz. Funciona como una especie de gran oreja que escucha y reacciona a las palabras y los sonidos, ubicada en el espacio público verde adyacente al edificio.
Esta instalación interacciona con la intensidad de las voces que a través de unos sensores instalados en la plaza, y también con el ruido ambiental que se genera en la ciudad , hace cambiar la forma y colores el dibujo creado por las luces. La intervención combina color y sonido por medio de 550 LEDs empotrados en el plano de tierra ocupando una superficie de 3.300 m².
Sostenibilidad

Todo el proyecto prevé un alto grado de calidad ambiental y de sostenibilidad , objetivos que se consiguen gracias a un importante sistema de suficiencia energética, habiendo conseguido la máxima calificación posible, “clasificación A” que lo afianza como uno de los edificios más eficientes de la ciudad en la distribución y consumo energético.
También se ha contemplado en la construcción evitar el sobrecalentamiento de las zonas interiores y el ahorro de agua, aprovechado el agua de lluvia y utilizando agua freática para los usos donde no haga falta el agua potable, como es el caso del lago que rodea el edificio en uno de sus lados, utilizando plantas acuáticas y filtros de grava que aportan una depuración natural.
Iluminación
En las áreas de exposición se ha instalado una innovadora iluminación de tubos LED programables de forma individual que contribuyen a la naturaleza dinámica del espacio expositivo. Se han instalado colectores solares para la obtención de agua caliente, sistemas de recuperación de calor y optimización del aire acondicionado. En la estructura del edificio se incorporaron paneles fotovoltaicos.
Auditorio
En el auditorio se utilizaron dos tipos de butacas, la butaca 6035 Flex para la zona de honor, acompañadas con mesas F1000 y otra butaca más compacta, 6061 Microflex en las filas posteriores, ambas con tapicería negra. En los laterales de las primeras filas se han adecuado una serie de plazas con sistema de fijación extraíble para adecuar la sala a personas de movilidad reducida.
En el acondicionamiento del auditorio se han utilizado los mismos materiales que para las salas de exposiciones y el vestíbulo: suelos de roble, paneles de acero galvanizado y barnizados para el techo, paneles de cartón yeso pintados de blanco para las paredes con revestimientos de madera o del mismo material que los techos.
Encofrados
Para la realización de los muros del edificio se utiliza el encofrado TRIO con sistema de trepado CB-240, junto con plataformas BR para los núcleos. En la ejecución de los forjados se utiliza el sistema Skydeck con puntales Multiprop con extracciones de hasta 6 metros y con cimbra Rosett para alturas superiores y forjados inclinados, además de encofrado MULTIFLEX y perfilería metálica para encofrado de muro perimetral con voladizo de 2 metros.
Video

















































































































