Casa Saltzman
Introducción
La Casa Saltzman es un ejemplo característico de la primera época de Richard Meier, cuando integraba el grupo de The Five Architects y proponía una nueva modalidad basada en el retorno al lenguaje del racionalismo europeo, inspirándose particularmente en las casa construidas por Le Corbusier en la década del ´20.
En ella se evidencian claramente las características conceptuales de esta modalidad, que motivaron la calificación de manierista por parte de los críticos contemporáneos. Se trata efectivamente de una operación centrada en el lenguaje.
Situación
Está ubicada en un terreno de perímetro libre en una zona poco densa de East Hampton, New York, Estados Unidos.
Concepto
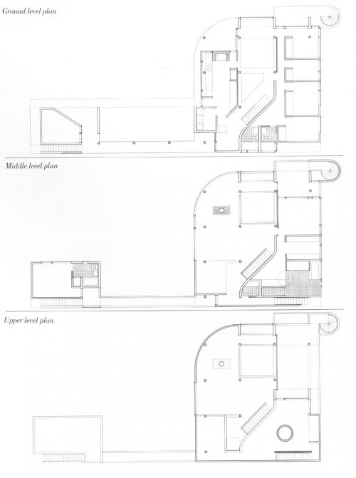
En la Casa Saltzman, el elegante uso del lenguaje racionalista se manifiesta, pues, como una pura fruición. La rotundez del partido, dos volúmenes netos separados entre sí y unidos por una pasarela y el uso de los pilotes contribuyen a generar aquella apariencia de maqueta purista apoyada sobre el paisaje que constituye uno de los paradigmas de la propuesta. La amplia curvatura circular que reemplaza la arista interior del cubo principal y el volumen cilíndrico saliente de una escalera –que remite vagamente al púlpito interior de la Casa Ozenfant– le bastan a Meier para calificar escultóricamente este volumen.
Espacios
En esta obra, el procedimiento de adición se complementa con marcadas sustracciones que van articulando el volumen. Esto se ve claramente en la terraza, que aparece como una caladura en el volumen, el cual se reconstruye sólo parcialmente con las salientes y entrantes de la marquesina.
Pero es quizá en los aventanamientos donde más se evidencia la fruición del uso del lenguaje.
Ventanas «en longueur» ventanas cuadradas de diversos tamaños y grandes ventanales se suceden a lo largo de las superficies de estos volúmenes. Pero ya no hay aquí trazados reguladores, intenciones programáticas ni contenidos conceptuales. Hay simplemente el uso libre y gozoso de los elementos sacralizados del lenguaje racionalista: la arquitectura que nos habla de la arquitectura, el metalenguaje de la operación manierista. Pero la fruición en el uso del lenguaje no debe confundirse con arbitrariedad. Aquí como en la Casa Smith, como en la Casa Douglas y como en las mejores obras de este período, la forma y la disposición de las perforaciones en la caja muraria guardan una estricta correspondencia con lo que ocurre en el interior de la casa.
Estructura
De hormigón armado, le permite hacer las sustracciones deseadas en el volumen, manteniendo la estructura independiente del cerramiento.
Materiales
Los materiales utilizados son el hormigón armado y el vidrio.












